Back to Home Page of CD3WD Project or Back to list of CD3WD Publications

CLOSE THIS BOOKBoring - Course: Manual woodworking techniques. Instruction examples for practical vocational training (Institut für Berufliche Entwicklung, 23 p.)
VIEW THE DOCUMENT(introduction...)
VIEW THE DOCUMENTPreliminary Remarks
VIEW THE DOCUMENTInstruction Example 5.1.: Holes of Limited Depth
VIEW THE DOCUMENTInstruction Example 5.2.: Bit Stand
VIEW THE DOCUMENTInstruction Example 5.3.: Screw Holes
VIEW THE DOCUMENTInstruction Example 5.4.: Through Holes
VIEW THE DOCUMENTInstruction Example 5.5.: Stool

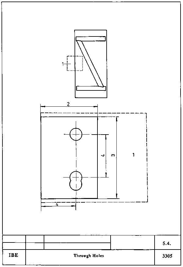
Instruction Example 5.4.: Through Holes

Through holes in wooden materials are required wherever fittings are to be mounted. In this example, the board door from instruction example 5.3. shall be provided with a screw-on lock as lock fitting.

Material

Board door from instruction example no. 3.

The door may already be screwed together.

But it is also possible to just use the outer board, where the lock shall be fitted, as single part.

Tools, measuring and testing means

Bit brace, auger bit or Forstner auger bit with twist drill, marking gauge, try square, folding rule or measuring tape, pencil

Auxiliary accessories

Work bench or trestles, screw clamps, supporting pieces of wood

Necessary previous knowledge

Measuring and scribing

Explanations to the working drawing

1 screw-on lock (lock fitting), 2 lock width, 3 lock height, 4 plug size

Sequence of operations

Comments

1. Prepare the working place.

Check the tools for completeness.

2. Put the board door on the work bench or on trestles.


3. Take the dimensions of the screw-on lock.

Dimensions are shown in the drawing.

4. Scribe the plug size, nut square and centre distance by means of the try square and marking gauge.

Height of door handle according to local conditions.

5. Select the proper auger bit or Forstner auger bit and chuck it in the bit brace.

Bit diameter depends on the dimensions on the screw-on lock.

6. Bore the holes for the key and for the nut square.

Bore the scribed boring points with the auger bit until the brad point penetrates at the other side of the door, then turn the door over and start boring again at the brad point hole. If a Forstner auger bit is used, drill a guide hole with a thin twist drill first and then bore with the Forstner bit from both sides.

7. Bore a second hole for the key hole, if necessary, to achieve the necessary hole heights.


8. Check the results.



Through Holes

TO PREVIOUS SECTION OF BOOK TO NEXT SECTION OF BOOK