Back to Home Page of CD3WD Project or Back to list of CD3WD Publications

CLOSE THIS BOOKPublic Health Technician (MSF, 1994, 192 p.)
II - Sanitation
VIEW THE DOCUMENT(introduction...)
VIEW THE DOCUMENTA. Excreta disposal
VIEW THE DOCUMENTB. Removal and treatment of wastewater
VIEW THE DOCUMENTC. Collection and disposal of refuse
VIEW THE DOCUMENTD. Technical briefs

Public Health Technician (MSF, 1994, 192 p.)

II - Sanitation

This chapter describes the health risks created by inadequate sanitation. It suggests some simple techniques for disposal of excreta, wastewater and refuse, which improve environmental sanitation and thus create "sanitary barriers".

A. Excreta disposal

Introduction

The term "excrete" includes urine and faeces.

The main objective of excrete disposal is to reduce the transmission of diseases due to environmental contamination by fæcal matter or the proliferation of vectors.

In an emergency situation, steps must be taken immediately, particularly where there is a large concentration of displaced people.

The methods of excrete disposal which apply to refugee camps as well as rural situations are generally simple and cheap. The choice of method will be decided more by local practices and socio-cultural factors than by technical considerations.

Excreta-related health risks

Many infectious diseases are transmitted by human excrete. The pathogens leave the body of the infected person in the excrete and contaminate one or more healthy individuals.

Urine is less dangerous than faeces, except in the case of one type of schistosomiasis (Schistosoma haematobium), typhoid, paratyphoid and leptospirosis (e.g. where water is contaminated by rat urine).

Five types of excrete-related diseases or transmission routes may be identified:

1.Faeco-oral transmission

Pathogens are transmitted by direct and domestic contamination (hands, water, food and objects contaminated by excrete).

The pathogens may be viruses, bacteria, protozoa and certain helminths. The list of faeco-orally transmitted diseases is long and includes diarrhoeas, typhoid fever, cholera, amoebic dysentery, giardia, hepatitis A, etc.

Control measures:

- providing toilets,
- improvement of water supply,
- improvement of shelter conditions,
- improvement of hygiene practices.

2.Helminths (worms) transmitted by soil

Helminth eggs have a latent period, or period between the moment they are excreted and the moment they become potentially infecting. The transmission of these "geohelminths" takes place through the contamination of soil or crops.

It mainly concerns ascaris, trichuris, ankylostoma and strongyloides. Infection by these helminths is very frequent and prevalences may be greater than 90% in certain populations.

Control measures:

- general excrete control,
- and/or treatment of excrete before use for fertilizing crops.

3.Beef and pork tapeworms (taenia)

Cattle and pigs are intermediate hosts of taenia The transmission cycle involves the contamination of soil and forage by human excrete, then the ingestion of undercooked meat by humans.

Control measures:

- excreta disposal,
- and/or treatment before use as a fertilizer,
- inspection and thorough cooking of meat.

4.Water-based helminths

The excreted eggs of this category of helminths pass part of their life-cycle in one or several intermediate aquatic hosts (snails, crustacea, fish), before becoming infectious to man. Examples are schistosomiasis and flukes.

Control measures:

- excreta disposal,
- treatment before disposal in the aquatic environment,
- control of intermediate hosts (e.g. snails in irrigation canals),
- reduction of contact with potentially contaminated water,
- correct cooking of fish and aquatic plants.

5. Excreta-related diseases transmitted by insect vectors

This includes all the diseases in the previous category which can be transmitted by insects (flies, cockroaches, etc.), and diseases transmitted by mosquitoes breeding in polluted water (Culex quinquefasciatus which transmits bancroftian filariasis).

Control measures:

- excreta disposal coupled with control of certain vectors.

The impact of an excrete disposal programme on health is difficult to evaluate.

It is generally agreed that a health impact will only be achieved if such a programme is linked to improving water supplies and individual and collective hygiene.

Choice of disposal technique

There are many excrete disposal techniques. In each situation the technique chosen should be adapted to the site conditions and the population concerned.

If this rule is ignored, the system may quickly become unused and damaged and may even create a health risk in itself.

In general the choice of an excrete disposal technique depends on:

- cultural factors, particularly local altitudes and practices concerning defecation;
- the physical nature of the site (soil type, natural drainage, rainfall patterns, water resources);
- the space available and locally available materials and skills.

A distinction may be made between emergency situations, where immediate action should be taken, and chronic or long term situations, where other factors dictating the choice of technique should be given more consideration.

EMERGENCY SITUATIONS

When there is a large collection of people (e.g. a refugee camp), or where the normal sanitation structures are destroyed in a disaster, it is essential to provide defecation facilities immediately. These facilities are usually provisional and are progressively improved or replaced by more suitable structures as the situation develops.

A defecation field or area may provide an emergency solution, particularly in hot dry climates and where there is enough space available. Defecation fields should be clearly marked, fenced if possible, and protected against flooding.

They should be located downwind and away from living areas, avoiding water courses and at a reasonable distance from water points (minimum 50 m).

If a bulldozer is available locally it is recommended that the ground is cleaned regularly and the fæcal material is buried in a trench so that the area may be reused.

The use of collective trench latrines may also be an adequate solution for emergency situations (see brief Trench latrines).

If a high water table, rock or sandy soil prevent the digging and use of trenches, elevated platforms may be built. It is also possible to use 200 litres drums, partially buried in the ground with an opening at the top, or to use concrete slabs which can be set on the top of opened drums.

If augers or drilling equipment are available, drilled latrines covered with simple slabs may be installed rapidly.

Whatever the emergency solution chosen, it is important to take steps to ensure that the facilities work well, are maintained properly and are used.

CHRONIC SITUATIONS

Different disposal techniques may be used in refugee camps and in emergency situations (simple pit latrines, VIP latrines, pour-flush latrines). There is no formula to suit all circumstances. For each situation some basic questions must be asked; the answers should help in the choice of technique:

- What are the traditional methods and habits concerning defecation?
- What method of anal cleansing is used?
- What position is used (sitting or squatting)?
- What are the cultural, social or religious habits which affect the technique of excrete disposal (separation of the sexes, of groups or of individuals, particular orientation of latrines, taboo places, the need to be alone, the acceptability of emptying a latrine pit, etc.)?
- What is the level of the water table? What seasonal variations are there?
- What is the rainfall pattern? What is the soil type?
- What other physical characteristics of the site may influence the choice of system (density of settlement, proximity of water sources, availability and type of building materials)?

The system should be chosen with the answers to these questions in mind, whilst remaining simple, cheap and above all easy to install and maintain.

As a general rule, individual family latrines are prefered. In most cases, individual family latrines are socially more acceptable and pose fewer problems maintenance than collective systems. If individual latrines are not possible because of population density, centralised units may be built at the edge of a living quarter or camp section where each family has access to its own latrine.

The area allowed for latrines should be big enough to dig new pits when the first ones are full.

Collective latrines usually pose maintenance problems. When this system is adopted for a population or for a central service (e.g. a hospital), it is indispensable to appoint someone to be responsible and possibly to pay them to ensure good maintenance.

An exereta disposal programme

Eight successive phases may be considered:

1. Identify the problem: site survey, questions, medical data, etc.
2. Initiate and organise participation of the population: consult local leaders, etc.
3. Collect information: geographic, climatic, demographic, socio-cultural technical and material.
4. Propose alternatives: analysis of data and technical options.
5. Choose a method: needs, social suitability, resources (financial, material and human), geography (soils, water, climate), space (family or collective systems).
6. Implement the system chosen: involve the population, control the costs, plan the construction.
7. Use and maintain the system: inform, educate. Take special care with collective systems.
8. Evaluate the system: sanitary inspection and monitoring system.

Calculation of the effective volume of a latrine pit

The pit latrine is the most common system of excrete control in the world.

To calculate the effective volume of a pit, proceed as follows:

V = N x S x Y

where

V = effective volume in m3,


N = number of users,


S = solids accumulation rate in m3/person/year,


Y = lifetime of latrine in years.

For dry pits, use a solids accumulation rate of 0.04m3 per person per year. For wet pits, use 0.02m3 per person per year.

When calculating the total pit volume a free space of 0.5m at the top of the pit is added to the effective pit volume.

The volume may also be increased by 30 to 50% if bulky anal cleansing material is used (e.g. stones, maize cobs, etc.).

The suggested design life of a non-emptyable simple pit latrine is 5 to 10 years.

That of an emptyable latrine (simple or alternating twin pit) is at least two years.

Conclusion

The designs shown in the technical briefs which follow represent the most simple and common techniques of excrete disposal:

- trench latrines, suitable for emergency situations;
- simple pit latrines, ventilated or not, the most frequently used;
- twin pit emptyable latrines, suitable for public facilities;
- pour-flush latrines, more sophisticated, suitable where there is plenty of water and where the population is familiar with this technology;
- flushing toilets with septic tanks, sometimes seen in hospitals, but which need constant running water.

This is just a quick review of disposal techniques. There are variations which allow adaptation to local conditions.

In general terms, an excrete disposal technique may be considered acceptable when:

- it contains the excrete in one place;
- it does not create an attraction for insects;
- it is not a source of pollution of water points;
- it is accessible to users;
- it gives a minimum of privacy;
- it is adapted to local habits.

B. Removal and treatment of wastewater

Introduction

"Nothing is lost, nothing is created, everything is transformed.." This principal applies equally to water: it is the source of life, much effort is spent to get it; but it also is a source of death, and it is essential for health that the same effort is made to remove it after use.

Health risks and nuisance

These risks are due to organic and biological pollution carried by wastewater as well as the presence of stagnant water:

- breeding of insect vectors (anopheles, culex);
- spread and multiplication of pathogenic agents such as cholera vibrios and schistosomonas, etc.;
- chemical contamination of water (nitrates, detergents) and ecological disturbance of aquatic environments;
- production of noxious and corrosive gases.

Definition of wastewater

The risks associated with wastewater depends on its origin, and it is useful to classify the important sources:

- Domestic wastewater

· Sewage: water carrying excrete in suspension, thus containing bacteria, viruses and fæcal parasites and also nitrogen.
· Sullage: water from the bathroom, the kitchen, laundry, etc., containing detergents and fats as well as micro-organisms of fæcal origin.

- Agricultural wastewater

· Stockraising effluent: slurry and manure.
· Crop growing activities: fertilizers and pesticides.

It is usual to measure the degree of pollution by the following parameters:

- Daily volume of effluent.
- Chemical Oxygen Demand (COD): a measure of the total organic content.
- Five day Biological Oxygen Demand (BOD5): the organic content biodegradable within 5 days.
- Total Suspended Solids (TSS).
- Nitrogen content (ammonia and organic nitrogen).
- Phosphorous content

General principles

For every place supplied with water there should be a removal system which prevents stagnant water and local pollution.

Treatment methods aim to fix the chemical and biological pollution (by sedimentation, filtration, etc.), and/or to destroy it by biological, chemical or physical processes and then to dispose of the treated water by infiltration into the ground, or into surface water (river, lake sea, etc.).

This field may become very technical and involves special expertise which is beyond our capabilities.

In practice, the problems faced in the field are few and generally simple to solve; for instance:

- stagnant water around a water point: well, tap, etc.,
- washing areas: bathing, cooking, laundry, etc.,
- laboratory and health centre wastes, etc.

More rarely:
- flushing toilets,
- house or hospital sewers.

Removal

A removal system should be able to remove wastewater, so as to avoid stagnant water, and to channel it to the disposal or treatment site without contaminating the local environment.

The collection surface should be gently sloped (1%) and cemented. Before removal, it may be necessary to pretreat the water to remove solid or dissolved matter which could hamper the removal and final treatment (see technical briefs):

- Grease-trap to eliminate fatty material which might block channels.
- Screen to remove floating objects.
- Sedimenter or sand trap to separate sand, soil, etc.

These structures become ideal vector breeding sites if they are not well maintained.

The removal system design may be based on different techniques:

- Open channel

This is the most simple and least costly technique but it entails maintenance problems: blockages, stagnant water, damage to the sides, etc.

This technique should be used only for drainage of rainwater or of wastewater over short distances; the channel should be cement-lined if possible and with enough slope to be self-cleansing

- Gravel drain

The open channel may be improved by lining it with plastic sheeting, filling it with coarse gravel, covering it with more plastic sheeting and then with earth.

The wastewater should never contain suspended material capable of blocking this type of drain which is impossible to unblock. This technique may be used in an emergency, for example at a dispensary or a laboratory.

- Pipe drain

This is the most effective way of removing wastewater but also the most costly.

Various types of pipe may be used (PVC, polythene, cement, fibrocement, etc.), with a minimum diameter of 100 mm.

The slope and the pipe diameter should be adequate for the flow, and the pipes should be buried correctly so as not to be destroyed by the passage of heavy vehicles (20cm of compacted earth minimum).

Check regularly in order to spot and deal with blockages.

Treatment

Wastewater treatment techniques mostly need specialised skills and technologies.

For this reason, these sophisticated techniques will not be studied in this guide. Information will be limited to infiltration systems and the basic principles of waste stabilization ponds.

INFILTRATION

Infiltration uses the natural capacity of the soil to fix particles present in water by filtration, and to purify the water by a process of biological decomposition capable of destroying micro-organisms and chemical pollution.

This natural capacity is always extremely variable, depending on the soil type:

- A mature organic-rich soil is host to intense biological activity favouring purification, but it blocks rapidly and so has a reduced infiltration potential;
- Conversely, a sandy soil may have an infiltration rate which is too rapid and which does not allow sufficient time for purification if the water table is too close to the surface;
- For the same reasons, a fissured rock would have only a small purifying capacity.

In practice, the two following parameters should be studied:

- The slope of the ground: a slope too steep may encourage water to reappear and so contaminate the ground.
- The infiltration rate: determined by percolation tests with clean water (see technical brief Soil permeability).

The principle of infiltration is used in the following techniques:

· soakaway pit,
· infiltration trench,
· evapotranspiration area,
· irrigated garden.

WASTE STABILIZATION PONDS

Waste stabilization is a biological process which takes place in ponds arranged in series.

It is an effective technique for the elimination of pathogens and is relatively easy to maintain, but the design and implementation should be left to specialists, or the result may be an almost insoluble problem.

It may be assumed that with a series of three ponds and a retention time in the ponds of 11 days, a reduction of 99.9% in the number of fæcal germs may be achieved.

The reuse of wastewater for irrigation after treatment in ponds may be useful, provided that the following rules are followed:

- ensure that irrigation is not likely to create areas of stagnant water;
- irrigate crops which are not in contact with the soil (e.g. fruit tree), or which are cooked before eating.

C. Collection and disposal of refuse

Introduction

The accumulation of household waste creates a public health refuse as well as a pollution problem.

The health risks are essentially to do with the encouragement of insect vectors and rodents:

- the breeding of flies which play a major part in the transmission of fæco-oral diseases;
- mosquitoes of the Aedes genus which lay eggs in water lying in empty tins, drums, tyres, etc., and which are responsible for the transmission of dengue, yellow fevers and other arboviruses;
- mosquitoes of the Culex genus which breed in stagnant water heavily loaded with organic matter, and which are liable to transmit microfilariases;
- rodents which are directly or indirectly responsible for the transmission of various diseases such as plague, leptospirosis and salmonella, and whose presence attracts snakes.

In addition to these health risks, poor management of the collection and disposal of refuse may involve the pollution of surface water or groundwater and increase the risk of fire. Lastly, the aesthetic aspects (sight and smell) are far from negligible.

These risks and nuisances are all the more serious at high population densities.

Certain types of refuse (from medical activities) represent a particular risk and so need special attention.

Type and quantity of refuse

The type and quantity of refuse produced by a community are extremely variable.

The main factors affecting the composition of refuse are:

- geographic region;
- sociocultural, cultural and material levels, which may produce great variations even within the same community;
- seasonal variations;
- the importance and diversity of refuse-generating activities (workshops, dispensaries, etc.);
- packaging of food ration.

The density of refuse is in the order of 100 to 200 kg/person/day and the volume varies between 0.5 and 101/person/day; an average value of 0.5 litre/person/day may be taken.

The percentage of putrescible matter may range from 20 to 70%.

These few figures simply present orders of magnitude, and in practice the quantity and density (or volume) of refuse should be determined for each situation. Its composition is only really important when disposal is by means of incineration or composting.

In general terms it may be assumed that the volume of refuse will be small when dealing with a population of rural origin and where the basic ration is in the form of dry foodstuffs (as is often the case during the initial phases of an emergency operation).

Refuse containers

The objectives are:

- to gather the refuse to facilitate the collection;
- to avoid dispersion by wind and animals.

Metal drums are generally used. The bottoms should be pierced so that they do not retain liquids from decomposition (and to avoid the drums being used for other purposes), and they should be provided with covers and with handles for easy lifting. In the first instance one drum per ten families may be provided, placed at a reasonable distance from the dwellings.

Certain structures need particular storage systems, either because of the specific nature of the refuse produced (hospitals), or because of the large volumes produced (market, slautghterhouse, various workshops). In these cases, solid, covered and easily cleaned bins may be built. In health centres, refuse is collected in separate containers: some dustbins are available for ordinary refuse and others, clearly marked, are used only for medical waste.

Collection

Collection should be done at least once per week to avoid the hatching of flies and odour problems. In practise the use of a whole chain of different resources need to be optimised, but a daily collection is the ideal.

The collection of the contents of dustbins (without forgetting the surroundings) may be done with vehicles. But it may be more reliable logistically to use hand carts or animal carts. Moreover, it is difficult in emergency situations to commit a vehicle exclusively to this task.

The collection should be organised:

- establishment of circuits,
- constitution of teams,
- allocation of a circuit to each team.

After its introduction the collection system should be supervised and evaluated periodically. (Is the circuit appropriate? Are the resources enough?)

These two steps of storage and collection require the co-operation of the population, which should be involved regularly (once or twice per month) in a general clean-up of the camp.

Disposal

Three techniques are used

- burying,
- incineration,
- composting.

BURIAL

Burial is done in trenches. Controlled tipping (see brief Controlled tip) is only used where there is sufficient space and access to mechanical equipment.

Access to the site should be restricted (a fence). If good drainage is not ensured, there is a great risk of the trenches turning into sickening quagmires.

The siting of the trenches should follow the same rules as for siting latrines, as the risk of polluting the water table is the same.

INCINERATION

Medical waste should be incinerated as it is potentially contaminated.

This method is not generally suitable for household wastes as it is costly and may be dangerous when it is done on a large scale (atmospheric pollution).

COMPOSTING

Composting is biological decomposition in the presence of air, as opposed to anaerobic decomposition which takes place in septic tanks for instance.

It is a technique which needs special care and which may cause major health risks if not mastered correctly. For this reason it should not be used in emergency situations.

D. Technical briefs

Trench latrine
Simple pit latrine
Ventilated improved pit latrine
Twin pit latrine
Latrine slab
Pour-flush latrine
Septic tank
Refuse pit
Controlled tip
Dustbin
Temporary incinerator
Permanent incinerator
Soakaway pit
Infiltration trench
Soil permeability
Grease trap
Irrigated garden
Evapotranspiration area
Sterilization by autoclave
Sterilization by hot air
Sanitary surveillance


Trench latrine

Method

Trench latrines represent a method of excreta disposal which is simple and rapid to implement, but temporary. They are only justified in emergency situations, until more permanent solutions are implemented.

Installation

- Choose a site away from water points (>= 30 m), and downhill from them.

- Dig trenches about 30 cm wide and 90 to 150 cm deep. Allow about 35 m per 100 users.Place the excavated soil near the side of each trench so that the users can cover their excrete with soil after each use, to reduce the attraction of flies.

- Lay planks down the two sides in order to ensure a good foothold and to limit erosion of the trench edges.

(When the excrete reaches about 30 cm from the surface, fill in the trench with compacted earth. Mark the spot and dig another trench.)

- Fence the area (for example with plastic sheeting), and put up a zigzag entrance in order to limit the risk of straying of animals and to keep as much privacy as possible for users.

- Put a water container with a tap and soap in an obvious place (near the exit) to allow the washing of hands after defecation.

Key

1. Fence (plastic sheeting)
2. Water container with tap and soap
3. Stones for drainage
4. Zigzag entrance
5. Planks
6. Trenches (width: 30 cm; depth: 90 to 150 cm)
7. Soil for burying excrete

Inputs

- Shovels, picks
- Planks (or wooden poles)
- Stakes (for the fence)
- Plastic sheeting (or local material)
- Empty cans (to handle soil for burying excrete)
- Water container (e.g. 200 l drum) with tap
- Soap

Important

- The planks may be replaced by wooden poles (which should be buried several centimetres).

- Ensure that living areas are not downwind of the trench latrines.

- It is usually necessary to build separate trench latrine areas for men and women. Simply separating the male and female sections with plastic sheeting and providing two separate entrances may not be enough from the point of view of acceptability to the population.

- The objective should be to replace the trench latrines as quickly as possible with a more hygienic system (e.g. ventilated pit latrines; see the other Latrines technical briefs).


Simple pit latrine

The simple pit latrine is one of the simplest and cheapest means of disposing of human wastes. If well designed and built, correctly sited and well maintained, it contributes significantly to the prevention of f‘coorally transmitted diseases.

Construction

1. Choose a site downhill from groundwater abstraction points and at least 30 m away; the latrine (or group of latrines) should be not less than 5 m and not more than 50 m from the dwellings.

2. Dig a pit, assuming that the solids accumulation rate will be about 0.04 m3 per person per year. Thus, for a group of 25 people (the maximum number per latrine recommended by WHO), it needs a pit of at least 0.04 x 25 = 1 m3 per year of use.

3. If a cement slab is to be used, it should extend at least 15 cm beyond each side of the pit to ensure a secure seating.

4. Make a slab (see technical brief Latrine slab), and place it over the pit.

If the soil is unstable it may be necessary to build a foundation to strengthen the pit walls before placing the slab.

5. Construct the superstructure. It may be built with bricks, earth, wood, plastic sheeting, etc., but preferably local materials. The superstructure should have a door if local habits dictate. Otherwise a spiral form may be used.

6. Fix a roof with the slope towards the back of the structure.

7. Dig a drainage channel around the latrine to prevent run-off entering and to protect the walls of the pit.

Key

1. Effective volume of pit
2. Defecation hole
3. Slab
4. Cover
5. Superstructure
6. Roof
7. Slab seating
8. Drainage channel
9. Water table
10. Example of a concrete slab (see brief)
11. Possible alternative: slab of logs (covered with soil to make maintenance easier; quality of wood is important: aging + termites = danger)

Inputs

- Shovel, pick, miner's bar
- Slab (see technical brief)
- Cover (wood, metal or concrete)
- Material for superstructure and door

Important

- Try to ensure that the cover is always replaced to avoid breeding of flies and bad smells around and inside the latrine.
- The slab and surroundings should be cleaned every day.
- If possible, provide lighting for use at night.
- Never put disinfectants (chlorine products, Iysol, etc.) in the pit: this only serves to inhibit the natural decomposition of fæcal material. The only situation in which it is recommended to pour disinfectants into a latrine pit is during a cholera epidemic.
- On the other hand it is recommended that fire ashes are put into the pit after each use. This gives a perceptible reduction of odours and accelerates decomposition.
- When the pit is nearly full (50cm from the surface), demolish it, or move the superstructure and slab to a neighbouring place and fill the pit with soil. Do not dig this place again for at least two years.
- Important: allow for the spare 50 cm of depth in the calculation of pit size. It is not part of the effective pit volume.
- Alternative method: if the subsoil is very rocky or the water table is very high and it is not possible to leave 1.5 m between the bottom of the pit and the groundwater level, the pit may be partially dug in a very very compacted earth mound. In this case the above-ground part should be lined with bricks or stones.
- Improvements: ventilated improved pit (VIP) latrine, twin pit latrine (see corresponding technical briefs).


Ventilated improved pit latrine (VIP)

Method

The VIP uses the movement of air across the top of a ventilation pipe to draw odours up the pipe and out of the latrine. Flies entering the pit are attracted to the light at the top of the pipe and die trying to escape through the mosquito netting.

Construction

1. Choose a site downhill and at least 30 m distant from groundwater points; the latrine (or group of latrines) should be not less than 5 m and not more than 50 m from the dwellings.

2. Dig a pit, assuming that the solids accumulation rate will be about 0.04 m3 per person per year. Thus, for a group a 25 people (maximum number per latrine recommended by WHO), it needs a pit of at least 0.04 x 25 = 1 m3 per year. If possible make the pit big enough to last 5 years.

3. If it is planned to use a concrete slab, it may be necessary to build a foundation on the upper part of the pit to support it.

4. Cast a slab (see technical brief Concrete slab) and place it over the pit. The slab should have a second hole behind the defecation hole with a diameter of about 150 mm to fix the ventilation pipe.

5. Construct a superstructure of brick, stone, wood, plastic sheeting etc, but preferably using local materials. A spiral form may be suitable, if it is acceptable to the population; this saves having to fit a door. The superstructure should provide a minimum of darkness so that when flies leave the pit they are attracted to the light coming from the ventilation pipe and not that coming from inside the superstructure.

6. Fix the ventilation pipe at the back of the latrine. It may be round or square, made of PVC, metal, bricks, reeds with earth plaster, etch It should be vertical, with an internal diameter of about 150 mm. A screen of mosquito netting is fixed at the top of the pipe to prevent the entry and exit of flies. Fit a roof to the superstructure with the slope carrying rainwater towards the back.

Important: the ventilation pipe should extend 50cm above the highest part of the roof.

7. Dig a drainage channel around the latrine to prevent erosion of the pit walls.

Key

1. Effective pit volume
2. Defecation or squatting hole
3. Slab
4. Absence of cover
5. Superstructure
6. Roof
7. Ventilation pipe (internal diameter: 150 mm)
8. Mosquito netting
9. Drainage channel
10. Water table

Inputs

- Shovel, pick, miner's bar
- Special VIP slab
- Mosquito netting (preferably nylon)
- Pipe of PVC or building material
- Material for superstructure and door

Important

The slab and surroundings should be cleaned every day.

If possible, provide lighting for night use.

Never put disinfectants (chlorine products, Iysol, etc.) in the pit: this only serves to inhibit the natural decomposition of fæcal material. The only situation in which it is recommended to pour disinfectants in a latrine is during a cholera epidemic.

On the other hand, it is recommended that fire ashes are put into the pit after each use. This gives a perceptible reduction of odours and accelerates decomposition.

When the pit is nearly full (50 cm from the top), demolish it or move the superstructure and the slab to a neighbouring place and fill the pit with soil. Do not dig this place again for at least two years.

Alterative method: if the subsoil is very rocky or if the water table is very high and it is not possible to leave 1.5 m between the bottom of the pit and the groundwater level, it is possible to dig the pit partially in a very well compacted earth mound. In this case the above-ground part should be lined with bricks or stones.

Do not use a cover on the defecation hole: this prevents the circulation of air.

Do not forget the mosquito netting which traps flies at the top of the pipe where they die. Use a synthetic or painted metal mesh because the gases which escape via the pipe are corrosive to metal.

The VIP latrine should be built in a dear space, away from trees which impede air movement. Pay attention to the wind direction so as not to cause an odour nuisance.


Twin pit latrin

Method

Twin pit latrines may be used in places where toilets have to last for a long time, so as to economise space (public places, health structures, etc.) and, as a bonus, to produce good quality organic manure.

The latrine is built on a lined pit divided in two by a watertight partition wall. Both pits are used alternately and are emptyable. As they are reusable the system is thus permanent. For collective facilities, several pits may be constructed in series.

Construction

1. Choose the site (see technical brief Simple pit latrine).

2. Dig the double pit large enough so that each half-pit has a 2 year accumulation capacity (see the chapter Calculation of the effective volume of a latrine pit).

3. Line the pit (brick, stone, etc.), leaving regular gaps in the construction to allow liquids to infiltrate, and build up the watertight partition wall between the two equal parts.

4. Place slabs with a defecation hole over each twin-pit.

These slabs should not cover the pits completely: one or more removable slabs should cover the back of each pit so that it can be emptied.

5. Construct the superstructure which should include both defecation holes in the same cubicle. Only one hole is used at a time, while the other is blocked.

6. After a period of 1 to 3 years the first pit is full:

- block the first hole and unblock the second.

After a further 1 to 3 years the second pit is full in turn:

- take out the contents of the first pit, which has formed compost, and reuse the pit;
- in this way the alternation between pits may be repeated indefinitely.

The material taken out is inoffensive and does not resemble excrete at ale

It is an excellent fertiliser.

Key

1. Defecation hole in service
2. Defecation hole on standby (blocked)
3. Slabs
4. Superstructure (spiral, or with a door)
5. Removable slabs (for emptying pits)
6. Ventilation pipe
7-8. Twin-pits
9. Mosquito netting
10. Gaps for the passage of liquids

Inputs

- Shovel, pick, miner's bar
- Mason's tools
- Bricks
- Cement
- Sand, gravel
- Material for superstructure and door
- Ventilation pipe and mosquito netting if latrine is to be VIP type
- 1 experienced builders and 1 or 2 labourers.

Important

The correct size of each pit is essential: each one should permit the storage of fæcal material for about 2 years, during which period possible pathogens contained in it are destroyed (biodegradation). Certain authors recommend one year only, although it is known that Ascaris worm eggs need more than one year to be destroyed.

As this technique demands the handling of fæcal material during pit emptying (even if the material is so decomposed that it is neither offensive nor dangerous), it is important to know before choosing such a system if it can be acceptable to the population to do this work. Social, religious and/or cultural factors may forbid it and demand the use of another method.

The compost taken out may be used to fertilize crops or if not, should be buried.

It is perfectly possible to build ventilated latrines on twin pits. Important: each pit must have its own ventilation pipe.

Remember to provide workers emptying the pits with protective clothing: at least boots and gloves (household glove type).


Latrine slab

Method

A latrine slab may be made of local material (e.g. Iogs covered with earth), but for more durable latrines a reinforced concrete slab is easy and relatively cheap.

Construction

- Make a mould of metal or wood with internal dimensions the same as the slab. Coat the inside with an oily product such as used engine oil, to avoid the concrete sticking to it.
- Place the mould on a flat surface which is covered by a layer of sand, plastic sheeting, paper, etc.
- Cut the steel bars to length and join them together with wire.
- Make a wooden or metal template for the defecation hole, oil its surface and place it in the mould.
- Mix the concrete: 1 volume of cement to 2 volumes of sand and 4 volumes of gravel.
- Cast a thickness of about 25 mm of concrete in the mould and level the surface without smoothing.
- Place the reinforcing steel on the surface.
- Cast the rest of the concrete and smooth the surface, making a curve round the defecation hole (useful when cleaning the slab).
- Position the footrests (e.g. bricks. Optional).
- If possible, attach handles of bent steel bar to several parts of the slab to aid carrying.
- Cover the slab with jute sacking or plastic sheeting and sprinkle regularly with water to keep it damp during curing.
- After 24 hours, remove the template from the defecation hole and recover.
- Take out of the mould and install after 4 to 6 days curing in the shade.

Key

1. Defecation hole
2. Footrests (optional)
3. Ventilation pipe hole (only for VlPs)
4. 8 mm reinforcing steel bars
5. Template for forming defecation hole

Inputs

- Cement: 1/3 of a bag
- Sand
- Gravel
- Shuttering timber, 70 mm: about 5 m
- Nails
- Reinforcing steel, 8 mm: 8 m
- Measure
- Shovel
- Bucket
- Trough or board for mixing concrete
- Trowel, float
- Saw
- Hammer, pincers
- Steel bar cutters
- Wire for joining reinforcing bars

Important

- If possible, make a gentle slope towards the defecation hole; this will ease cleaning.
- Don't forget the handles. It is very difficult to move the slab without them.
- If the slab is for a VIP latrine, don't forget the hole for the ventilation pipe (150 mm dia).
- Take care over the curing (4 to 6 days in the shade): it greatly affects the strength of the slab.
- The template for the defecation hole should be tapered to ease its withdrawal from the concrete.
- If embarking on a programme of latrine construction, it is well worth the trouble to build a workshop for continuous production. This workshop should have a water point, storage for tools and a covered area for casting and curing slabs.


Pour-flush latrine

Method

Pour-flush latrines are relatively simple in design, but should only be considered where there is abundant water for flushing.

The latrine is fitted with a pan and a water trap which stops odours from coming out and prevents flies from reaching the excreta.

Construction

- The siting and construction steps are the same as for the simple pit latrine (see the corresponding technical brief).

- The simple pit latrine slab is replaced by one fitted with a pan and water trap. In mady places such slabs can be found ready made. Otherwise it is possible to make a trap out of 75 mm PVC pipe, and fit it to an ordinary slab.

Connection

- If the pour-flush latrine is not connected to a sewer or on-site treatment system (e.g. septic tank), the pit should be masonry lined as the heavy water flow would erode the walls of an unlined pit. The lower half of the pit should be lined with open brickwork to let the water infiltrate into the soil.

- It is possible to construct this type of latrine with an emptyable twin pit if the infiltration rate is too low or if there is a risk of polluting groundwater points. (In this case the pit should be airtight: see technical brief Twin pit latrine.)

- To calculate the effective pit volume, use a solids accumulation rate of 0.02 m3/ person/ year.

- Preferably, connect the pour-flush latrine to a septic tank (see technical brief Septic tank).

Key

1. Slab
2. Pan
3. Water trap
4. 75 mm drainage pipe
5. Simple pit or alternating twin pit
6. Open joints in lower pit lining, to allow passage of liquids
7. Removable slab
8. Foundation
9. Backfill and sand
10. Superstructure
11. Septic tank
12. Inspection/emptying hole with cover
13. Outlet pipe towards an underground soakaway system

Inputs

- Materials for superstructure
- Excavation tools (shovels, picks, etc.)
- Slab with pan and water trap, or simple slab fitted with a 75 mm PVC water trap
- Building materials and tools (for pit or septic tank)
- 75 mm pipe for connections

Important

- As a general rule, the pour-flush latrine is suitable for regions where water is habitually used for anal cleansing. In other cases it is preferable to use dry pit latrines.

- It is essential to have a water point close by so that the toilet may be flushed after each defecation. If the water supply fails, closure of these latrines and temporary replacement by a system not using water should be considered.

- Maintenance should be frequent: if these toilets block they should be unblocked quickly, or material will solidify and plug the water trap.


Septic tank

Method

A septic tank receives and treats wastewater before disposal (underground dispersal by infiltration trenches). The septic tank receives all domestic wastewater (sewage and sullage), and is suitable for wastewater from schools, hospitals,etc.

Operating Principles

A septic tank is a container, usually rectangular in shape, built just underground, in which wastewater is retained for 1 to 3 days.

During this period, solid material settles and is decomposed by bacteriological action. Although this biodegradation is reasonably active, the accumulation of solids means that the tank needs emptying at regular intervals, generally every 1 to 5 years.

The effluent from a septic tank needs secondary treatment before final disposal in the environment. It is purified and disposed of by underground dispersal via infiltration trenches positioned after the septic tank (see technical brief Infiltration trench).

Design principles

- In order to reduce the concentration of suspended material in the effluent, the tank has a partition separating it into 2 compartments, the first having double the volume of the second. The depth of the liquid zone is 1 to 2 m. The length of the tank is usualy 2 to 3 times its width.

- The volume of the tank is calculated on the basis of a 3 day retention time of the quantity of water entering in the tank each day.The effective depth of water should not be less than 1m.

Frequency of emplying

- The tank should be emptied when it is 1/3 full of solids. The frequency of emptying is given by:
[1/3(volume of tank in m3)]/[(solids accumulation, m3/ pers./ year) x (number of pers.)] = n years

The solids accumulation rate depends on temperature. A figure of 0.03 m3/pers/year is considered a reasonable average. After emptying, it is advisable to fill the tank with clean water.

Key

1. Floating material (oils, fats)
2. Clarified liquid
3. Settled solids
4. Inlet tee
5. Outlet tee
6. Partition to retain solids and floating material
7. Access holes with covers
8. Ventilation

a: 20% of effective depth
b: 40% of effective depth
c: 20% of effective depth
d: 40% of effective depth
e: at least 75 cm
f: effective depth of water (minimum 1 m)

Inputs

- Plans
- Shovels, picks, etc.
- Builder's tools
- Sand for sub-base
- Shuttering timber
- Concrete (quantity calculated according to tank volume), concrete blocks or prefabricated elements
- Pipes and inlet and outlet tees (minimum die 100 mm)
- Ventilation pipe

Important

- A septic tank may be built in situ, in concrete or concrete blocks, or alternatively, with prefabricated panels in concrete, fibre or plastic.
- Whatever the construction method, the tank must be water-tight and strong enough to resist soil and possible groundwater pressures. It should rest on a sub-base of sand several centimetres thick.
- The minimum diameter of the inlet and outlet pipes should be 100 mm and their minimum slope 2%.
- The siting of a septic tank is dictated partly by the placing of the dispersal area (infiltration trench). The tank should be away from vehicular passage, accessible for maintenance, and as near as possible to the building served.
- Make sure that there is enough land available for the underground dispersal system and that the soil allows a sufficient rate of infiltration.
- The gases resulting from anaerobic digestion in the septic tank should be evacuated without nuisance. This is done by means of a ventilation pipe which extends above roof height, taking into account the wind direction.
- The quantities of chlorine and detergent products used in normal household and hospital activities should not affect the tank's functioning
- It is not necessary to use special additives in the tank to activate it. The materials collected in the tank are rich enough in micro-organisms to start biodegradation.
- Take care if the water table is not deep.

Example of design calculation for a septic tank

- Design calculation for a septic tank for a health centre of 20 beds and a water consumption of 50 litres/bed/day. The effluent from the septic tank is to be disposed of in an infiltration trench.
- It is estimated that 80% of the water consumed enters the septic tank

Assumming a 3 days retention time, the volume of the tank will be:

(0.04 m3/bed/day) x (20 beds) x (3 days retention time) = 2.4 m3 or 2.4 m long, 1 m wide and 1 m deep.

- The frequency of emptying accumulated solids if one assumes that the accumulation rate is:

[1/3 (2.4 m3)]/[(0.03 m3/bed/year x (20 beds)] = 1.4 year

- For designing an underground infiltration system, see technical brief Infiltration trench.


Refuse pit

Method

In an emergency situation, the best way to dispose of household refuse (not medical waste) is burial in a controlled tip if possible (see technical brief Controlled tip), or in collective or family refuse pits if there is not enough land or the transport for controlled tipping.

The high water content of this type of refuse does not allow it to be burned in the pits; apart from using a lot of fuel, the incomplete combustion obtained by this gives a false sense of security.

- It is important to respect minimum distances to avoid the danger of contaminating water points.

· Distance from water points:

>15m if the pit serves fewer than 10 families,
> 30m if it is a collective pit.

· Distance from dwellings:

>10m if the pit serves fewer than 10 families,
> 30m if it is a collective pit.

- Dig a hole, leaving the earth to one side (to be used for daily covering of refuse).
- Check that the bottom is more than 1.5m from the water table. (It is possible to drive in a metal bar such as a reinforcing rod to a depth of 1.5m and see if it is wet when pulled out.)
- Surround the hole with a fence to avoid accidents and prevent the entry of animals etc.
- Dispose of refuse in the pit each day, covering it with a layer of earth to avoid attracting flies and rodents.
(Ashes or a mixture of ashes and earth may be used for this covering.)
- Refill the hole completely and compact the earth when the level of refuse reaches from the surface.

Key

1. Pit
2. Refuse, day 1
3. Earth, day 1
4. Refuse, day 2
5. Earth, day 2
6. Fence
7. Excavated earth
8. Water table

A. Dwellings
B. Refuse pit
C. Latrine
D. Well

Inputs

- 1 pick, 1 shovel
- 2 buckets (to lift out the earth)
- 1 miner's bar
- 2m length of reinforcing rod
- Stakes and fencing material
- 2 people for 1 day (depending on size of pit)

Important

- Only throw household refuse in the pit. Do not throw in medical (waste potentially contaminated) before incineration.
- If the soil is too unstable it may be useful to support the walls with uncemented bricks.
- It is not efficient (it is expensive) to burn household refuse. This technique (described in technical briefs Temporary incinerator and Permanent incinerator) should be reserved for medical wastes.
- It is essential that refuse is covered with earth or ashes immediately after disposal to avoid attracting flies and rodents and to accelerate decomposition.
- In certain cases (hospital, feeding centre), when the quantities of non-medical waste to be disposed of need a very deep pit, it may be covered by a slab (for safety) with a covered opening. The cover should be heavy and fitted tightly to the opening to prevent the entry of flies. Make sure that the cover is replaced after each use.


Controlled tip

Method

This technique is used to eliminate a community's waste. Its feasibility is essentially dependent on the land surface available and the availability of collection and transport equipment (animal carts, lorries, etc.).

- Calculate the length of trenches needed using the following formula: for a width of 1.5m arid a depth of 2m, dig 1 linear metre of trench per 200 people per week
- Choose an area at least 800m from dwellings; living areas should not be downwind from the tip.
- Take care about the distance from water points, which should never be less than 50m away and which should be uphill from the tip.
- Fence the area well.
- Dig a surface water drainage ditch around the whole area. The lowest corner of this ditch should lead to a soakaway pit.
- Dig the trenches with a mechanical shovel if possible, placing the earth beside the trenches; this earth is used as tipping proceeds.

Operation

- The refuse is collected and taken to the tip, then dumped at one end of the trench and covered immediately with earth. The following load is dumped next to the first, and so on until the trench is full.
- After 6 months the trenches may safely be redug to make a new tip, or to use the contents as a fertilizer.

Key

1. Fence
2. Trench waiting for use
3. Part of trench already full
4. Alley (wide enough for the passage of the refuse collection vehicle)
5. Drainage ditch
6. Crossing point of ditch
7. Lowest corner: towards soakaway pit
8. Lorry bringing refuse
9. Excavated earth used progressively for covering
10. Refuse
11. Layer of backfilled earth

Inputs

(construction)

- Land
- Mechanical shovel or numerous workers
- Stakes and fencing material
- Poles or tree trunks to build the bridge crossing the drainage ditch

(operation)

- Lorry or cart for transporting refuse
- Trained personnel, permanently at the tip
- Shovels for covering refuse
- Boots and gloves for personnel
- Broom and 0.05% chlorine solution (or Iysol) for daily cleaning of the cart or lorry.

Important

- This technique needs a lot of land and sophisticated equipment for its implementation, which can entail heavy costs.
- Important: the bottom of the trenches must be more than 1.5m from the water table to avoid pollution by leachates.
- The compulsory distance from dwellings demands the use of a lorry or cart.
- The staff should be trained for their task and should wear protective clothes; washing facilities (water and soap at least) should be available at the site.
- If the tip is designed to have a lifespan of more than 6 months, it is possible, when the end is reached, to redig the start of the first trench fired, to reopen the tip. Otherwise it is necessary to open a second tip during the time it takes for the first one to stabilize.
- The fence is essential to avoid scavenging and accidents at the tip.


Dustbin

Method

The dustbins may be used along paths and roads in a refugee camp or in the courtyard of a hospital.

- Cut a 200 litres oil drum in two.
- Hammer the cut edges to avoid injuries.
- Fix a cover on the open end with hinges.
- Pierce about 20 holes in the bottom with a large nail to let decomposition liquids drain out.
- Fix a handle on the cover for opening, and two on the sides for carrying.
- Paint the inside of the dustbin with anti-corrosion paint.
- Paint the outside in a bright and attractive colour to make it clearly visible.
- Make a support, in metal or wood, for example, to raise the bottom of the dustbin from the floor.
- Dig a hole where the dustbin will be placed, 50cm deep, the same diameter as the dustbin, and fill it with stones to drain leachates.
- Place the support on the stones and the dustbin on the support.

Key

1. Cover
2. Handles
3. Hinge
4. 1/2 metal drum
5. Pierced bottom
6. Support
7. Stones (drainage)
8. Hammered edges

Inputs

- 1 drum, 200l
- 1 cold chisel or metal saw
- Wire, nuts and bolts, or pop rivets for fixing handles
- 1 hinge (or piece of rubber or leather) for attaching cover
- Wood or metal and stones for support
- Anti-corrosion and coloured paints

Important

- Attach the cover in such a way that it falls shut every time it is let go.
This is the only way to be sure that the dustbin is always covered.
- Allow one dustbin for every 10-15 houses, and others along roads and in public places (schools, markets, etc.).
- Organise refuse collection and diposal.
- Organise regular cleaning and disinfection of the dustbins.
- Hammer the cut edges to avoid injuries.


Temporary incinerator

Method

This incinerator serves a temporary purpose in a dispensary or health centre.

If the health structure becomes permanent, it should be replaced by a permanent incinerator.

- Cut the top cleanly off a 200 l metal drum, around 2/3 of its perimeter (see fig. 1). Cut a hole the diameter of the chimney in the remaining part of the cover.
- Perforate a metal plate (length = internal height of drum, width = diameter of drum at the place the cover was cut), all over its surface with holes about 1 - 2 cm diameter. Slide it into the alum and fix it so as to divide the inside into two chambers of unequal volume.
- Fix the cut part of the cover to the top edge of the plate with hinges.
Attach a handle so that this cover may be opened and closed.
- Cut some rigid metal grating, or make some with the same cross section as the large chamber of the drum (in front of the metal plate), and fix it horizontally about 20 cm from the bottom of the drum.
- Cut out a panel 40 x 40 cm at the bottom of the drum and remount it as a door using hinges.
- Fit a chimney (about 2 m high) on the hole made in the fixed part of the cover.

Operation

- Fill with refuse from the top.
- Fill the bottom with firewood through the door (6).
- Light the fire and give it time to take well.
- Monitor the combustion, turning over the refuse frequently.
- Once incineration is complete, empty the ashes and &pose of them like domestic refuse (refuse pit or controlled tip).

Key

A. Top of drum (part not cut)
B. Hole cut for chimney
C. Large chamber (for refuse)
D. Cut-out of cover

1. Metal drum, 2001
2. Perforated metal plate
3. Perforations in the metal plate for draught
4. Movable cover
5. Chimney
6. Fire chamber door (used to regulate the draught)
7. Metal grating (or heavy mesh) to separate the refuse from the fire chamber

Inputs
- 1 drum, 200l (e.g. fuel drum)
- 1 cold chisel and 1 hammer
- 1 metal saw
- 1 pair of pincers and wire
- 1 metal plate (same thickness as drum, same height; width: about 2/3 of drum diameter)
- Large nail or punch (for making perforations)
- System to fix the plate in the drum (e.g. angle steel and nuts and bolts)
- Tin chimney pipe
- Heavy mesh or grating
- Metal hinges (4)

Important

- Never over-fill with refuse: as the draught comes from the fire, the pile of refuse should not be too compact.
- Do not empty the incinerator from the top; only take out the ashes which fall.
- Clean out the fire chamber frequently.
- Do not try to economise on firewood: always keep a good fire going to guarantee complete combustion.
- Turn over the refuse frequently during combustion to make the ashes fall and to expose all the refuse to the flames.
- Never put explosive objects (e.g. aerosol cans) in the incinerator, or materials which give off toxic fumes on combustion (certain medicines for example). Always seek advice before in case of doubt.
- Situate the incinerator where the smoke will not bother people, and place it under a shelter if possible to avoid corrosion being worsened by rain.
- The door (6) may be adjusted to regulate the draught. However, if the draught is enough, incineration with the door closed is the most economical on firewood.
- If it is used frequently, such an incinerator will not last more than a few months (less than a year because of corrosion due to the great heat generated).


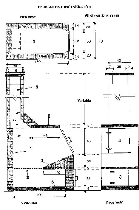
Permanent incinerator

Method

This incinerator is useful for a dispensary, a hospital or a health centre, for disposing of refuse generated by medical activities. Domestic refuse should not be incinerated, but buried (see technical brief Controlled tip).

1. Draw a detailed plan of the structure.
2. Build brick foundations 100 x 70 x 20 cm (overall dimensions).
3. Shutter and cast the base slab, fire chamber slab, upper slab and chimney-top slab.
4. Lay the base slab on the foundations.
5. Build the refractory brick walls up to the height of the fire bars. Lay the fire chamber slab and cement the fire bars in place.
6. Continue the walls up to the chimney. If possible, plaster the inside of the fire chamber with a heat-resistant mixture.
7. Lay the upper slab which acts as a base for the chimney.
8. Build the chimney at least 1.5 m high (be sure to use a plumb line; the chimney should be perfectly vertical).
9. Fit the fire chamber and refuse-loading doors.
10. Let the structure cure for 2 to 3 weeks, covered in wet jute sacking or plastic sheeting before using it.

Key

1. Brick walls (7 x 14 x 28 cm)
2. Fire bars (3 cm spacings)
3. Door of fire chamber
4. Door for loading refuse
5. Chimney
6. Base (reinforced concrete: 130 x 70 x 8 cm)
7. Fire chamber slab (reinforced concrete:70 x 60 x 3 cm)
8. Top slab (reinforced concrete: 100 x 70 x 7 cm)

Pay attention to the opening left for the chimney (25 x 45 cm)

Inputs

- Detailed plans
- About 300 refractory bricks (7 x 14 x 28 cm)
- 4 bags of cement
- Sand (270 litres)
- Gravel (125 litres)
- Refractory plaster mix (earth, lime or cement)
- 2 metal doors
- 15 metal bars (8 mm dia, 650 mm long)
- Reinforcing steel, 6 mm: 18 m
- Shuttering timber for the slabs
- Builder's tools
- About 3 days work for one experienced builder and one labourer.

Important

- The combustion capacity of such an incinerator is about 100 kg of refuse per hour.
- The incinerator should function with the loading door shut to encourage the draught.
- The same remarks on operation apply as those for the temporary incinerator (see corresponding technical brief).
- It is important that one or two people are responsible for the operation and maintenance of this type of equipment.


Soakaway pit

Method

A soakaway pit allows the disposal of wastewater from a water point, kitchen, shower etc by infiltration into permeable soil.

Construction

1. Choose the site: at least 6 m from dwellings, 3 m from trees or hedges, 30 m from groundwater points if it is a domestic soakaway pit.

2. Determine the dimensions of the soakaway pit according to the quantity of wastewater to be infiltrated and the permeability of the soil.

3. Dig the trench for the inlet pipe (diameter 50 to 100 mm), with a slope of 1%, 300 mm wide and 300 mm deep.

4. Dig the pit to the required dimensions. Measure the depth from the bottom of the incoming trench. If the pit is deep and/or the soil is unstable, support the sides during digging.

5. Fill the soakaway pit with stones up to the level of the trench bottom. The stones should be clean, with a diameter of 5 to 15 cm.

6. Lay the incoming pipe (1% slope). Clear the stones around its end to create an empty space to aid dispersal of the flow.

7. Place a large flat stone over the pipe and add a 10 cm layer of stones.

8. Cover the stones with straw or a plastic sheet and fill in the hole with earth.

Key

1. Permeable soil
2. Pipe (diameter 50-100 mm)
3. Compacted earth
4. Cleared space at the end of the pipe
5. Straw or plastic sheet
6. Stones
7. Flat stone

Inputs

- 1 tape measure
- Shovels, picks
- 1 wheelbarrow
- 1 pipe, 50-100 mm diameter, in PVC or cement
- Stones: enough to fill the soakaway pit
- Straw or plastic sheet

Important

- To determine the dimensions of the pit, it is important to evaluate the infiltration capacity of the soil and to allow for a possible increase in the amount of wastewater to be disposed of.

- Install a grease trap before the soakaway pit if it is meant to take wastewater from kitchens, in order to avoid clogging by fats (see technical brief Grease trap).

- The straw or plastic sheet over the stones prevents soil from getting between the stones and blocking the system.

- The bottom of the soakaway pit should be at least 1m above the water table during the wettest period, and 1m above any impermeable layers. If this is not possible, opt for a system of infiltration trenches (see technical brief Infiltration trench).

- Plant the area of the soakaway pit with grass if water or wind erosion are severe.


Infiltraton trench

Method

Infiltratiom trenches may be used for the underground dipersal of wastewater from kitchens, health centres, etc. They may equally well be used for disposing of water from septic tanks.

Construction

1. Choose a site at least 30 m from groundwater points, 6 m from dwellings and 3 m from trees or hedges and 3 m from possible property boundaries.
2. Determine the dimensions of the trench or trenches according to the permeability of the soil and the quantity of wastewater to be infiltrated (see technical brief Soil permeability).
3. Dig the trench for the incoming pipe (300 mm wide, 1% slope).
4. Lay the pipe (100 mm), and cover with earth.
5. Dig the infiltration trench to the required dimensions (with a slope of 0.5 to 1%).
6. Rake the sides and bottom of the trench. Do not walk in the trench after this step.
7. Fill the trench with gravel up to the level of the inlet pipe (minimum thickness 100 - 150 mm).
8. Extend the inlet pipe about 0.5 m into the infiltration trench.
9. Lay the drain (perforated pipe, or pipe sections with loose joints). Plug the far end.
10. Fill the infiltration trench with gravel to a thickness of 50 mm over the drain.
11. Cover the gravel with straw or a plastic sheet.
12. Fill the trench to the top with earth and compact it lightly.
13. After one or two weeks, plant grass on the top to limit erosion.

Key

1. Permeable soil
2. Gravel
3. Incoming channel
4. Drain (perforated pipe)
5. Straw or plastic sheet
6. Earth
7. Plug at the end of drain
8. Distribution box

Inputs

- 1 tape measure
- Shovels, picks
- 1 wheelbarrow
- 1 pipe, 100mm die in PVC, cement or clay
- 1 drain (perforated pipe or pipe sections with loose joints)
- Gravel
- Straw or plastic sheeting

Important

- Dispersal systems using simple or multiple trenches are an alternative to soakaway pits for less permeable soils, where there are large quantities of effluent, in the case of a high water table or where there are rocky layers near the surface.

- To estimate the dimensions of the trench, evaluate the infiltration capacity of the soil and allow for a possible increase in the amount of wastewater to be disposed of.

- For a system with several trenches, a distribution box is installed at the beginning of the drains to ensure that the effluent flow is well divided. The box should have an inspection cover and may be designed like a grease trap (see technical brief Grease trap).

- The straw or plastic sheet over the gravel bed prevents the entry of soil which would block the system.

- The bottom of the infiltration trench should be at least 1 m above the level of the water table during its highest period and 1m above any impermeable layer.


Soil permeability

Technique

The measurement of soil permeability by means of percolation tests allows:

1. Judgement of the infiltration capacity of a soil to be used for the dispersal of effluents;

2. Determination, using the results, of the dimensions of a dispersal system.

Method

- Dig at least 3 test holes, each one 150 mm wide and 500 mm deep on the proposed site.
- Fill the holes with clean water and leave overnight or at least for several hours to bring the soil to a saturated state.
- The next day, fill the test holes with 300 mm of water.
- After 30 minutes and then 90 minutes, measure the water levels in the holes.
- Calculate the difference in level corresponding to this period of 60 minutes.
The soil may be considered as having an infiltration rate sufficient for a dispersal system if the level in each hole falls by at least 150 mm during this60 minute period.

Key

Percolation test

1. Permeable soil, proposed for a dispersal system
2. Test holes: diameter = 150 mm, depth = 300 mm
3. Test hole filled with 300 mm of water to measure the infiltration rate

Inputs

- 1 operator
- 1 hand auger or 1 pick and shovel
- 1 watch or stopwatch
- 1 tape measure

Important

- The percolation test is done with clean water, so does not allow for the clogging effect of the discharge of effluents carrying solids.
- It has been found that the infiltration rate for different soil types is more or less the same once the soil surface is partially clogged. The infiltration rate is thus usually found to be between 10 and 30 l/m3/day.
- For safety, it is better to work on the basis of 10 l/m3/day for the infiltration of effluents and 20 l/m3/day for clean water (e.g. from a water point).
- The following formula is used to calculate the length of trench needed (see also the example opposite):

Effective infiltration surface (square metres) = Volume of effluent to be infiltrated (litre per day)/(Infiltration rate of soil (litre per square metre per day))

Length of trench in metres = Effective infiltration surface (square metres)/(2 x depth of trench (metres))

APPROXIMATIVE ESTIMATION OF INFILTRATION RATE ACCORDING TO SOIL NATURE

Soil nature Infiltrationrate (litre/m2/day)
Sand 50
Sandy soil, earth soil 30
Porous limestone soil 20
Porous clayey limestone soil
Compact limestone soil 10
Compact clayey limestone soil

Example of dimensions determination of a d dispersal system

The effluent of the septic tank of a health centre must be eliminated with infiltration trenches.

- The effluent volume to infiltrate is 500 litres per day.
- The infiltration rate of the soil is estimated at 10 litres/m2/day.
- The trenches will be 0.7 m depth.

· The effective infiltration surface is calculated the following way:

Volume of the effluent(l/day)/Infiltration rate(l/m2/day)= 500/10 = 50 m2

· A trench is made of two vertical walls; the total lenght of the trench is obtained by:

Infiltration surface(m2)/(2 x trench's depth (metre))=50 m2/(2x0.7)= 36 metres

· Notice that only the vertical surfaces of the trench are taken into account when calculating the infiltration surface.


Grease trap

Method

A grease trap is used for separating solid materials, oils and fats contained in wastewater before its disposal in the ground. If oils and fats are left in the effluent they very quickly clog an infiltration system. Two simple types of grease trap may be distinguished (the choice of one or another type will be decided by the resources and skills available): a) With an elbow at the inlet and a "T" at the outlet. b) with separating partitions.

Principle

In both cases the trap operates with three zones:

1. 1nlet zone which slows down and distributes the effluent in the trap;
2. Middle zone where fatty material floats and accumulates at the surface and where heavier solids settle to the bottom;
3. Outlet zone where grease-free water flows out towards the underground dipersal system.

Construction

- Choose a place with easy access, above the dispersal system (soakaway pit, infiltration trench).
- Design the grease trap and draw a detailed plan (see effective volume).
- Excavate at the chosen place, to dimensions greater than the trap to be built.
- Build the grease trap using locally available means and materials, e.g. cast concrete, bricks or concrete blocks, with an internal cement plaster.
- Position the inlet and outlet pipes carefully to facilitate the flow and the operation of the trap. The removable cover should fit well on the trap and be sufficiently heavy to avoid unauthorised opening (children).

Key

1. Watertight casing
2. Removable cover
3. Inlet elbow, 90ø
4. Outlet tee
5. Inlet
6. Outlet
7. Separating partitions
8. Middle zone (separation of fats)
9. Settled solids

Resources

- Detailed construction plans
- Casing in bricks or cement
- Cement, sand, gravel
- Shuttering timber
- 6 mm reinforcing steel
- Shovel and pick
- Bricklayer's tools
- 10 mm PVC pipe, elbow and tee

Important

Effective volume

- The effective volume of the grease trap should be enough to allow a retention time of the wastewater sufficient for the separation of oils and fats and the settlement of solids.
- As a general rule, it may be considered that the effective volume should be double the hourly flow entering the trap.

Maintenance

- Good maintenance is the key to the efficiency of the grease trap. Weekly cleaning is recommended to limit odours. Material removed by the trap should be buried.


Irrigated garden

Method

Wastewater from water points may be used to irrigate vegetable gardens. The most common method is flood or basin irrigation.

The basins are periodically flooded and the water stays until it infiltrates into the soil.

Furrow or channel irrigation is also practiced. The water is distributed in a system of channels between rows of plants and infiltrates vertically and horizontally (e.g. for potatoes, beans, bananas, paw paws, etc.).

Construction

- Choose a site for the garden about 15m from the water point.
- Dig a channel or drain to collect the wastewater.
- Prepare the garden in basins or furrows, depending on the crops grown and the space available.
- The passage of water from the channels into the basins may be regulated using sluices or earth.
- Continue the main channel to the end of the garden to dispose of excess water in a soakaway pit or infiltration trench.
- Erect a fence to keep animals out.

Key

1. Basins
2. Ridges
3. Sluices
4. Channel
5. Flooding
6. Fence

Inputs

- Gardening tools
- Tools and materials for construction of final disposal system (see technical briefs Soakaway pit and Infiltration trench)
- Fence (local materials)
- Sluices (e.g. short planks)
- Seeds

Important

- In refugee camps, where space is limited, an irrigated garden is preferable to infiltration disposal systems. It provides a nutritional supplement for the refugees and a source of activity and possible revenue.
- Water containing detergents may be toxic to some plants.
- Install a grease trap (see corresponding brief) if the water comes from the washing area.
- Take local advice on the choice of irrigation method and the watering frequency.
- Wash vegetables (even root vegetables) before cooking and eating.


Evapotranspiration area

Method

This is useful where a soakaway pit or infiltration trench cannot be used because of impermeable soils (e.g. clay or rock).

Evapotranspiration combines evaporation of water from the soil and transpiration by vegetation.

Siting: at least 30 m from groundwater points, 5 m from dwellings, property boundaries, trees and bushes.

Evapotranspiration is a complex phenomenon which varies with latitude, season and time of day. An acceptable approximation is given by:

Evapotranspiration rate (mm of water per day) = 0.8 x Evaporation rate

- The dimensions of an evapotranspiration area may be calculated on this basis, in the absence of other data. If the evaporation rate is not known, it may be roughly measured using a square basin of water placed on the ground. Take measurements over several days and take an average.

Construction

- Prepare and mark out the area on the ground.
- Dig the trench for the wastewater inlet pipe and the trenches of the evapotranspiration area.
- Spread 5 cm of sand on the bottom of the trenches.
- Install the dispersal drains (100 mm perforated pipe) on a bed of gravel.
- Fill the trenches with a 50cm layer of sand and gravel mixture.
- Cover everything with 10 cm of soil.
- Plant a quick-growing local grass (for high water consumption).
- Build an embankment around the area to protect it from run-off.

Key

1. Impermeable soil
2. Sand and gravel
3. Drains (10 mm perforated pipe)
4. Soil
5. Quick-growing vegetation
6. Run-off protection embankment

Inputs

- 2 wheelbarrows
- 4 shovels, 2 picks
- Inlet pipe (100 mm PVC)
- Dispersal drains (perforated 100 mm PVC)
- Tee for inlet pipe to drains
- Sand and gravel
- Soil
- Quick-growing grass: sown or planted out

Important

- The evapotranspiration area is most suitable for hot, arid or semi-arid climates.
- Choose a short-rooted grass which needs a lot of water for growth.
- Cut the grass regularly.
- Use a grease trap (see corresponding brief) when the wastewater originates from a kitchen or washing area.

Design calculation example

- A dispensary in a hot, dry tropical zone generates 300 l of wastewater per day.

The rocky soil will not allow underground dispersal. The evapotranspiration rate is 10mm/day.

Evapotranspiration rate = 10 x 0.8 = 8 mm or 0.008 m of water/day
Effective area = volume of wastewater (m3/day)/evapotranspiration rate (mm/day)
Effective area = (0.3 m3/d)/(0.008 m/d)=37.5 m2


Sterilisation by autoclave

Method

There are many types of autoclave on the market. They work on the same principle (water vapour under pressure, like a pressure cookery, but are operated in different ways.

The mixed energy autoclave described here (Daguerre type) is particularly suitable for emergency situations, as it can be heated by electricity, kerosene stove, gas or charcoal.

Procedure for use

1. Put water in the autoclave (8 litres if heating by kerosene, gas or charcoal, 16 litres if heating by electricity).
2. Load the boxes (with covers open) into the autoclave.
3. Close the autoclave, tightening diametrically opposite clamps.
4. Choose the pressure required by moving the weights: 1st notch = 1 bar (121°C), 2nd notch = 2 bars (134°C)
5. Close the Yellow, Red and Blue valves, leaving the Green bleed valve open.
6. Put on full heat. As soon as a continuous jet of steam comes out of the Green valve, close it until the pressure reaches 1 bar; then open it and let the pressure fall to 0.2 bar. Repeat this operation at least once in order to eliminate all air pockets.
7. Let the pressure rise until the desired pressure/temperature is reached (121°C or 134°C).
8. As soon as that pressure is reached the regulating valve releases steam. Count the sterilization time from this moment and start the timer.
9. Reduce the heat (position 1 or 2 on the electric heater, or reduce the kerosene or gas flame) to keep just a light jet of steam coming out.
10. When the sterilization time is finished, cut the heat and open the Yellow valve. (Be careful of the jet ofboiling steam: use a flexible tube to vent the steam into cold water.) Close the valve again when the pressure drops to 0.1 bar.
11. Fill the outer tank with cold water (16l).
12. Open the Blue valve, (the pressure reading falls because a vacuum is created inside).
13. Wait for 10 mins and dose the Blue valve. Open the Red valve.
14. Open the autoclave. Wait for 15 to 30 mins with the cover half open to allow the material to dry completely.
15. Take out the boxes and close the covers immediately.

Key

1. Chimney
2. Graduated water tank (81 and 161)
3. Blue valve
4. Condensation coil
5. Removable collection tank
6. Air filter (filled with cotton wool)
7. Red valve
8. Electric heater indicator (optional)
9. Electric control (1,500/3,000/4,500W)
10. Timer
11. Pressure gauge
12. Isolation valve, not used
13. Safety valve
14. Weights (left:1 bar, right: 2 bars)
15. Green valve (bleeding)
16. Yellow valve (for emptying at the end of sterilization)
17. Electric overheating safety cut-out (optional)
18. Electric elements
19. Door for kerosene/gas/charcoal stove

Inputs

- 1 autoclave and detailed instructions
- Boxes with covers
- Water: 8 or 161 for sterilization plus 161 for drying
- Flexible pipe and container of cold water (for venting steam at the end of the cycle)
- Indicator tape (if available)

Important

- For more complete instructions, refer to the user's guide for each model
- The timer acts only as a reminder. It does not control the electricity supply.
- Air bleeding (step 6) must absolutely be done at least twice, or sterilization is not complete.
- The heating time is longer when not using electricity. The sterilization time is the same, whatever heating method is used.
- Only start counting the sterilization time from the moment the temperature (pressure) is reached, after air bleeding.
- If adhesive indicator tape is available (do not confuse this with the tape used for hot air sterilization), stick small pieces to the outside of the boxes; the indicator tape turns brown if the sterilization time and temperature have been achieved.
- NEVER operate the autoclave without water (the heating elements will be destroyed).
- NEVER try to open the autoclave before the end of the cycle.


Sterilization by hot air

Method

The "Poupinel" oven is used for sterilizing medical and surgical equipment with hot air.

- Place the hermetically sealed boxes of instruments in the Poupinel loosely packed and not stacked, so that air can circulate between them.
- Set the thermostat (3) at the desired temperature (see below).
- Set the timer (5) at the desired time (see below).
- Close the door.
- Monitor the temperature (4). Timing starts only when the thermometer shows the sterilization temperature is reached. Adjust the setting of the timer at that moment.

Times/temperatures

- There is a choice of 2 sterilization protocols, depending on the type of equipment and the degree of urgency: - Either 160°C for 120 minutes; - Or 170°C for 60 minutes.
- Avoid exceeding 170°C because you risk to damage the instruments.

Key

1. Oven
2. Door
3. Temperature control
4. Thermometer
5. Heating time control
6. Circulating fan
7. Shelf
8. Electricity supply

Inputs

- Electricity
- Poupinel
- Metal instrument boxes
- Indicator tape (if available)

Important

- Ensure that timing starts only once the sterilization temperature (160°C or 170°C) has been reached.
- If "Poupinel" adhesive sterilization indicator tape is available (do not confuse it with the tape used for autoclave sterilization which is very similar), stick small pieces on the outside of the boxes; the indicator tape turns brown if the correct temperature and time have been achieved.
- Only sterilize metal instruments (without any plastic or rubber parts), heat-proof glass ("Pyrex" type) or vaseline in the poupinel. Any other type of material will burn.
- Anything which can not be sterilized in the Poupinel may be sterilized in an autoclave (see Sterelisation by autoclave).
- This method of sterilization consumes a lot of electricity. Although there are charcoal or kerosene-heated Poupinels available, only the electric models are considered reliable.


Sanitary surveillance

Method

The aim of sanitary surveillance is to perform a regular and continuous evaluation of the performance of a water supply and sanitation programme. The analysis of its results should reveal both technical and operational problems in such a way as to highlight trends and promote immediate action and, if necessary, a reorientation of the programme by a revision of the objectives and resources deployed.

Sanitary surveillance is done above all through field observation (or sanitary inspection), and by establishing indicators which allow specific objectives set for the programme to be quantified (e.g. quantity of water per person per day).

- The frequency of surveillance activities depends firstly on the situation and the results obtained Monthly inspections should be considered a minimum. When there are particular problems (e.g. a sudden influx of people, the rainy season, epidemics, evaluation of a programme's impact), this frequency is increased.
- To carry out the sanitary surveillance correctly, a standardized form is used to collect essential information (see opposite page). This form should be adapted to each situation and should always be designed for use and interpretation by local staff, who should eventually be able to carry out this surveillance themselves.
- Sanitary inspections develop field knowledge, an understanding of how well the water and sanitation installations function and are maintained, and of the habits and practices of the population and general hygiene conditions. It is preferable to carry out inspections accompanied by local staff responsible for the area, and by one or more representatives of the population and anyone else who is influential and who has a good knowledge of the place and the people.
- The indicators to be monitored are most commonly chosen according to specific objectives and standards set by the programme. These indicators may be:

- water quantity: the number of people /water point, litres/person/day, number of containers/family;
- water quality: free chlorine residual, bacteriological quality, turbidity, taste and odour;
- disposal of excrete and refuse: number of people/latrine, refuse pits/family or section, etc.

Key

- Example of a sanitary surveillance form

Inputs

- 1 sanitary surveillance form, adapted to the particular situation.
- 1 bucket, 10 or 201 and a watch for measuring water flow.
- 1 Pooltester (if chlorination is done, to measure free chlorine residual; see brief Monitoring chlorination).
-1 portable bacteriological analysis kit (if the programme demands, see brief Water sampling).

Important

- The analysis of epidemiological data collected in curative health structures (morbidity due to diarrhoeal, dermatological and ophthalmic diseases, and diseases transmitted by insect vectors) is complementary to the sanitary surveillance carried out on the ground. It allows a relationship to be established between the health status of the population and its general living conditions and hygiene. It also allows better targeting of action to take and of the health messages to spread.
- The information gathered during a sanitary survey should be interpreted and communicated to everybody involved in the programme, without forgetting the local staff who work directly with the population concerned.
- It is important to maintain the frequency of surveillance in order to sustain interest and to follow the evolution and impact of sanitation and water supply activities over time.

TO PREVIOUS SECTION OF BOOK TO NEXT SECTION OF BOOK