Back to Home Page of CD3WD Project or Back to list of CD3WD Publications

CLOSE THIS BOOKTools for Mining: Techniques and Processes for Small Scale Mining (GTZ, 1993, 538 p.)
Technical Chapter 19: Energy Techniques
VIEW THE DOCUMENT(introduction...)
VIEW THE DOCUMENT19.1 Bicycle drive pedal drive
VIEW THE DOCUMENT19.2 Animal-powered whim
VIEW THE DOCUMENT19.3 Water balance
VIEW THE DOCUMENT19.4 Wind generator
VIEW THE DOCUMENT19.5 Savonius rotor
VIEW THE DOCUMENT19.6 Water wheel
VIEW THE DOCUMENT19.7 Horizontal water wheel
VIEW THE DOCUMENT19.8 Rope turbine
VIEW THE DOCUMENT19.9 Solar cells
VIEW THE DOCUMENT19.10 Solar collector (solar thermal)
VIEW THE DOCUMENT19.11 Water turbine
VIEW THE DOCUMENT19.12 Internal combustion engine

Tools for Mining: Techniques and Processes for Small Scale Mining (GTZ, 1993, 538 p.)

Technical Chapter 19: Energy Techniques

ENERGY SUPPLY TECHNIQUES

19.1 Bicycle drive pedal drive

Mining General
Energy, Energy Techniques

germ.:

Fahrradantriebe, Pedalantriebe

span.:

accionamiento a bicicleta, accionamiento a pedal

TECHNICAL DATA:

Dimensions:

starting at approx. 1.2 × 2 × 0.5 m

Weight:

25 kg

Form of Driving Energy:

pedal drive

Mode of Operation:

semi-continuous/intermittent

Throughput/Capacity:

continual output of 80 - 100 W, peak performance up to 500 W

ECONOMIC DATA:

Investment Costs:

for simple pedal lever approx. 20 DM; for bicycle drive starting at approx. 200 DM

Operating Costs:

mainly labor costs

Related Costs:

possibly gear unit

CONDITIONS OF APPLICATION:

Operating Expenditures:

low |————|————| high

Maintenance Expenditures:

low |————|————| high

Machines which can be Driven:



pedal drive:

bicycle drive:


percussion jig, manual diaphragm jig(see photo), Baader's blower (Harzer Wettersatz), air separators (pneumatic dry washer), tire pump, concussion (bumping) table

bumping table, Chinese liberation pump (see fig.) possibly haulage by block and pulley, small ball-mill, small sizing drum, pedal fan, vibrating screen

Replaces other Equipment:

manual and small mechanized drives

Regional Distribution:

based on current knowledge, so far not used in small-scale mining

Environmental Impact:

low |————|————| very high

Suitability for Local Production:

very good |————|————| bad

Under What Conditions:

metal manufacturing shop using bicycle parts

Lifespan:

very long |————|————| very short

Bibliography, Source: McCullogh

OPERATING PRINCIPLE:

The pedal-lever system transfers the power forces from the leg to the machine using the principle of leverage. In situations where machines have been hand-driven, the use of pedal drive frees the hands for other activities such as control, regulation, feeding, discharge, etc. The bicycle-drive uses the motion of the bicycle chain or rear wheel to drive the particular machine, possibly via a chain gear.

AREAS OF APPLICATION:

Pedal-levers are used for imparting simple pulsating power-impacts in the lower capacity range.

Bicycle drives are applied in all situations where continually rotating low-power movements are needed.

REMARKS:

In small-scale mines of artisan character which have so far been operated primarily manually, there are numerous areas of application where a simple pedal or bicycle drive can substantially ease the work load and increase ouput.

SUITABILITY FOR SMALL-SCALE MINING:

Pedal drive systems are practical for application in traditional small-scale mining in Latin America as low power drive mechanisms (< 100 W). They should, however, not be mistaken as a substitute for mechanization.


Fig.: Pedal drive for a centrifugal water pump. Centrifugal water pump. Source: McCaullagh.

19.2 Animal-powered whim

Mining General
Energy, Energy Techniques

engl.:

animal-driven gear germ.: Gopel

span.:

malacate

TECHNICAL DATA:

Dimensions:

required space: approx. 50 m²

Weight:

150 - 500 kg

Extent of Mechanization:

semi mechanized

Driving Capacity:

0.7 - 3 kW, average of approx. 800 W

Form of Driving Energy:

mechanical via animal power

Mode of Operation:

practically continuous

Throughput/Capacity:

depends on draft animal

Technical Efficiency:

70 - 90 %, for example for shaft haulage: haulage speed 0.3 - 0.65 m/s with haulage bucket volume of 0.3 - 1.2 m³ at a maximum depth of 250 m

Operating Materials:


Type:

draft animals and feed

Quantity:

1 - 2 draft animals (donkeys, oxen, horses)

ECONOMIC DATA:

Investment Costs:

750 to 5000 US$ depending on land of origin and machine

Operating Costs:

low

Related Costs:

for haulinging water, well construction

CONDITIONS OF APPLICATION:

Operating Expenditures:

low |————————| high

Maintenance Expenditures:

low |————|————| high

Personnel Requirements:

experience with harnessing and handling animals

Location Requirements:

draft animals and animal feed must be available

Machines which can be Driven:

Harzer Wettersatz (Baader's blower), bucket chain-conveyor, water-bag haulage system, ball mills, roller mills, Chilean (edge) mills, buddies, concussion (bumping) tables, piston pumps

Replaces other Equipment:

small engines, manual drive systems

Regional Distribution:

North Africa, Asia, Latin America, but no longer applied in mining

Operating Experience:

very good |————|————| bad

Environmental Impact:

low |————|————| very high

Suitability for Local Production:

very good |————|————| bad

Under What Conditions:

good metal-manufacturing shop; wooden construction also possible

Lifespan:

very long |————|————| very short

Bibliography, Source: Projekt-Consult, Agricola, Calvor, Villefosse, Delius, Lowe, Treptow, Wagenbreth

OPERATING PRINCIPLE:

Animals harnessed to the outer end of a horizontal lever arm continuously walk in a circle, rotating the arm around a central axis, thereby either directly or indirectly (via gear mechanism) driving a machine. Numerous design and construction variations.

AREAS OF APPLICATION:

Driving force for machines of low output for mining and beneficiation. Especially suitable for machines requiring high torque and low rpm.

REMARKS:

Animal-powered whims (gears) are particularly suitable for draining or hauling water. Animal-powered whims were applied historically in beneficiation and for ventilation.

The harnessing of animals for powering machinery was widely used in mining in central Europe during the late Middle Ages up to the 19th century; it was also historically found in agriculture, primarily for pumping purposes, an application which has been transferred to present-day small-scale mining. The output varies substantially depending on the kind of draft animal (e.g. horse 400 - 1000 W, mule 300 - 600 W, donkey 75 - 200 W, ox 300 - 500 W). The camel-type animals typical of the Andes (llamas, alpakas) do not accept being harnessed. In the high altitudes of the Andes, minimum values (output, efficiency, etc.) must be used for planning purposes. The very low rpm of the animal-powered whim prevents a conversion to other forms of energy and limits its application to mechanical uses. Since agriculture and mining activities frequently exist adjacent to one another, and agriculturally-employed draft animals are only needed periodically, use of these animals during idle periods for mining purposes appears practical.

The ability of draft animals to spontaneously produce up to ten times their normal long-term output permits the animal-powered whim, depending on the particular machine, to serve as a replacement for small motors whose output lies around 2-3 times that of the normal output of draft animals.

A special form of animal-powered whim is the Koepe-sheave whim (friction pulley), which was widely used in mining earlier,

SUITABILITY FOR SMALL-SCALE MINING:

Animal-powered whims are suitable for driving machines with low output, especially those with low rpm. The possibility for local production also provides an impetus for technical developments in other economic sectors (e.g. agriculture).


Fig.: Horse-powered whim for shaft haulage. Source: Agricola.


Fig.: Animal-powered whim for deep haulage. Source: Calvor.

19.3 Water balance

General Mining
Energy, Energy techniques

germ.:

Wasseraufzuge

span.:

elevadores de ague

TECHNICAL DATA:

Dimensions:

depends on transport distance

Extent of Mechanization:

not mechanized

Form of Driving Energy:

potential energy of water

Mode of Operation:

semi-continuous

Technical Efficiency:

very high efficiency when constructed with low-friction bearings

Operating Materials:


Type:

water

Quantity:

> weight of material to be conveyed + difference of rope weight

ECONOMIC DATA:

Investment Costs:

substantially cheaper compared to other haulage systems, since rope costs, etc. occur in the latter as well

Operating Costs:

very low

CONDITIONS OF APPLICATION:

Operating Expenditures:

low |————|————| high


Two persons for filling and emptying the water; these activities could also be partly automated.

Maintenance Expenditures:

low |————|————| high

Location Requirements:

large quantities of water at suitable topographical conditions (vertical elevation difference close to the haulage shaft or drainage gallery)

Equipment which can be Driven:

water and ore transport systems, ore and man-lifts in shafts

Replaces other Equipment:

mechanized haulage machines

Regional Distribution:

no longer in use today; formerly (19th century) distributed throughout Europe

Environmental Impact:

low |————|————| very high

Suitability for Local Production:

very good |————|————| bad

Under What Conditions:

metal and wood manufacturing shops using industrially-made ropes (cables); car parts can be used for brake systems

Lifespan:

very long |————|————| very short

Bibliography, Source: Various issues of "Zeitschrift fur das Berg- Hutten-, und Salinenwesen im preuss Staate" (Magazine for Mining, Metallurgy and Salt Industry in Prussian States, Germany)

OPERATING PRINCIPLE:

Water balances work according to the counter-weight principle. The bucket to be conveyed is lifted through the lowering of a heavier, water-filled counter-weight. Two conditions are necessary for operation:

- the counter weight has to generate a greater lifting power than the weight to be lifted

- the lifting force of the empty bucket has to be greater than the lifting force of the empty counter- weight (without water) in order to allow both the counter weight and bucket to return to the start position.

In cases where the counter-weJght is guided up a steep ramp, the lifting forces must be corrected by the cosine of the inclination angle. The less steep the ramp is, the higher the empty weight and the filling volume of the counter-weight have to be.

AREAS OF APPLICATION:

Hydromechanical hoisting of raw ore, mine water and possibly personnel transport.

REMARKS:

This method can most successfully be applied where drainage galleries allow the draining of process water, with the counterweight travelling up and down the shaft, without associated difficulties. Historically water balances were in use primarily in English and Upper Silesian coal mines.

The Installation of water balances demands specific conditions:

- mine infrastructure: haulage shafts must be located close to a suitable path for the counter-weight (ramp to the surface or shaft). The fact that drift mining is dominant in Latin America limits the possibilities for small-scale mining application in that region.

- large quantities of water and sufficient elevation potential must be available (topographical and hydrographical prerequisites).

Historically, hydro and pressurized-water motors were in use until the middle of this century.

SUITABILITY FOR SMALL-SCALE MINING:

The possibilities for application of water balances are very limited. Under ideal conditions (hydrographic, topographic and those related to mine-infrastructure) water balances guarantee a simple, stable, and driveless hoisting system.

19.4 Wind generator

Mining General
Energy, Energy Techniques

germ.:

Windgenerator

span.:

generador eolico

Manufacturers:

Elektro, Sudwind, Brummer, Enercon, Electromat and others

TECHNICAL DATA:

Dimensions:

10 m 0, height of tower 14 m with 20 kW generator; weight: 2500 kg

Extent of Mechanization:

fully mechanized

Form of Driving Energy:

wind (aeolian): for high-speed wind generators to produce electrical energy, minimum wind speed of 3.5 m/sec., nominal (rated) speed of 11 m/sec., for low-speed wind-mechanical wind mills, significantly lower wind speeds are sufficient

Mode of Operation:

continuous

Throughput/Capacity:

from 100 W to 50 kW depending on demand

Technical Efficiency:

up to a maximum of 35 % total efficiency as Cp (performance coefficient) × m (mechanical efficiency of the converter) × AM (efficiency of the machine)

Operating Materials:


Type:

wind

Quantity:

for generation of electrical energy, starting at speed of approx. 4 m/sec.

ECONOMIC DATA:

Investment Costs:

8000 to 20.000 DM/kW for facilities of 10 - 30 kW without tower

Operating Costs:

none

Related Costs:

tower, possibly storage batteries

CONDITIONS OF APPLICATION:

Operating Expenditures:

low |————|————| high

Maintenance Expenditures:

low |————|————| high

Location Requirements:

prerequisite for permanent operation is sufficient wind speeds both daily and annually. This must be confirmed by taking wind measurements for a period of several years at the location under consideration.

Machines which can be Driven:

electric motors and other machines with an electrical connection

Replaces other Equipment:

e.g. diesel generator, central electrical power supply, water turbines employing electricity

Regional Distribution:

common in industrialized countries (dependent on location), less frequent in developing countries

Operating Experience:

very good |————|————| bad

Environmental Impact:

low |————|————| very high

Suitability for Local Production:

very good |————|————| bad

Lifespan:

very long |————————| very short


rotors, gears and generators long-lasting, accumulators limited

Bibliography, Source: Manufacturer information, DVA, von Konig, GATE, STAMPA, Kleemann/Melip

OPERATING PRINCIPLE:

The high-speed wind generator orients itself according to the wind direction, whereby the rotor is set into rotation by the pressure of the wind (wing principle). The rotor axis is coupled, either directly or with a gear, to an asyncronous generator. The electrical energy so generated is drawn off either directly as counter-current electricity and consumed, or rectified for storage in accumulators.

With mechanical utilization of wind - most suitable with low-speed multiple-blade impeller - a connecting rod or drill rods transfer the mechanical energy to the machine (mainly pumps).

AREAS OF APPLICATION:

- decentralized generation of electrical energy as an isolated operation.

- for pumping mine and processing water in mining operations; possibly also for water drainage in shallow mines.

REMARKS:

The high specific investment costs for wind generators can only be Justified when the location exhibits optimal climatic conditions.

The longer the duration of calm periods to be accommodated, the higher the investment costs for the energy-storage unit (batteries with low discharge current). Such batteries are expensive and comparably short-lived, which significantly affects the operating costs and generated energy costs. Experiences from research activities of the DAV and the Frauenhofer Gesellschaft (Society) revealed that wind conditions of the alpine region are very non-constant and are in no way comparable to those of coastal regions, where experiences in using wind to generate energy have been actualized. Storm protection and regulation is still problematic in the alpine region. Unfortunately, it can be feared that this situation also applies to the high mountainous region of the Andes.

In the eastern Mediterranean region and in Persia, indications of early application of wind-energy converters can be traced back to the time of approx. 1000 B.C.

SUITABILITY FOR SMALL-SCALE MINING:

Extreme dependency on location and high investment costs for an imported product make this technology mostly inappropriate for small-scale mining. Furthermore' the storage of wind-generated energy, e.g. in the form of compressed air, is too expensive for the small-scale mining industry.

19.5 Savonius rotor

Mining General
Energy, Energy Techniques

engl.:

cross-flow rotor

germ.:

Savoniusrotor, Durchstromrotor

span.:

rotor savonius, motor de impulsion radial

TECHNICAL DATA:

Dimensions:

7 m × 2.5 m × 5 m (HWL, three-bladed rotor), rotor 0 160 cm

Form of Driving Energy:

aeolian (wind)

Throughput/Output:

up to 200 W

Operating Materials:


Type:

wind

Quantity:

min. 3 m/sec.

ECONOMIC DATA:

Investment Costs:

approx. 2000 DM for smaller units

Operating Costs:

none

CONDITIONS OF APPLICATION:

Operating Expenditures:

low |————|————| high

Maintenance Expenditures:

low |————|————| high

Location Requirements:

sufficient wind conditions (see Technical Outline 19.4 - wind generators), whereby it must be noted that Savonius and cross-flow rotors are more suitable for low wind speeds (around 3 m/sec.).

Machines which can be Driven:

pumps (e.g. small compressors for displacement pumps, tire pumps)

Replaces other Equipment:

fans, ventilators

Reglonal Distribution:

earlier, relatively widely distributed

Operating Experience:

very good |————|————| bad

Environmental Impact:

Iow |————|————| very high

Suitability for Local Production:

very good |————|————| bad

Under What Conditions:

workshops working with fiberglass-reinforced synthetic resins, metal and wood

Lifespan:

very long |————————| very short

Bibliography, Source: Landtechnik Weinhenstephan (Germany), von Konig

OPERATING PRINCIPLE:

The Savonius rotor, as a machine operated by continual flow, functions similarly to the cross-flow turbines, with the exception that the driving flow-medium is air (wind). Low-pressure (suction) develops on the concave side of the impeller blades, and high-pressure conditions prevail on the convex side. The rotor begins to rotate around its central axis when wind forces are sufficient; this movement is used to power mechanical drive units.

AREAS OF APPLICATION:

Discontinuous drive for low-output machines (e.g. pumps), especially pumps for circulating or hoisting processing water in beneficiation.

SPECIAL AREAS OF APPLICATION:

For generating 12V direct-current electricity with battery storage for illumination or other low-consumption demands for electricity (e.g. recharging of electric mining lamps).

REMARKS:

Due to the unpredictability and nonreliability of wind, making it impossible to plan on, this wind-driven mechanical drive technology is only suitable for machines which can be left to operate periodically without supervision.

The storm protection of Savonius or cross-flow rotors is problematic, since the same surface area of the rotor is exposed to the wind regardless of wind direction, and cannot, as is the usual case, be turned away from too-strong winds. However, the qyrostatic force of the propeller at high rpms has a stabilizing effect. The tower for Savonius or cross-flow rotors can easily be locally constructed of wooden logs at low cost.

The major disadvantages of all wind aggregates are the significantly higher space requirement and the non-planable energy production resulting from the constantly fluctuating wind conditions which determine the output.

SUITABILITY FOR SMALL-SCALE MINING:

Small-scale mining operations in Latin America are seldom located where conditions are suitable for utilization of wind energy; this limits the possibilities for use even of Savonius or cross-flow rotors, which are able to operate at lower wind speeds and are ideal for mechanical-drive purposes.


Fig.: View and cross-section of a Savonius (left and above right) and a cross-flow rotor. Source: Landtechnik Weihenstephan (Germany).

19.6 Water wheel

General Mining
Energy, Energy Techniques

engl.:

water-powered gear

germ.:

Wasserrad, Wassergopel

span.:

rueda de ague, rueda hidraulica, malacate a ague

Manufacturer:

M. Impler, Filou

TECHNICAL DATA:

Dimensions:

water wheels from 80 cm up to more than 7 m in diameter are in use in small-scale mining. E.g. overshot water wheel: with approx. 27 lifer scoop-volume, diameter approx. 4 m, around 40 scoops approx. 70 cm wide, approx. 3 m long axle

Weight:

e.g. 1700 kg for overshot water wheel of 4-m diameter, 950 kg for 2.5 m diameter wheel, 700 - 800 kg for Zuppinger water wheel of 2.5 m diameter

Form of Driving Energy:

hydromechanical

Mode of Operation:

continuous

Throughput/Capacity:

up to approx. 10 kW

Technical Efficiency:

highest with overshot water wheels, approx.70 % middleshot water wheels approx.60 % lowest for undershot water wheels at approx.32 - 38 % Zuppinger water wheel approx.65 - 70 %

Operating Materials:


Type:

water

Quantity:

approx. 100 liters/sec or less for smaller wheels

ECONOMIC DATA:

Investment Costs:

in Germany: overshot water wheel with 4 m diameter: 25.000 DM; overshot water wheel with 2.5 m diameter: 15.000 DM; in developing countries with local production substantially lower costs in some cases, e.g. for overshot wooden water wheel 5 m in diameter made in Colombia 1300 DM

Operating Costs:

practically none

Related Costs:

hydrological engineering measures, flood protection

CONDITIONS OF APPLICATION:

Operating Expenditures:

low |————|————| high

Maintenance Expenditures:

low |————|————| high

Location Requirements:

demand For water and vertical elevation difference as follows: overshot wheels: approx. 1 m plus wheel diameter middleshot wheel: radius of wheel undershot wheel: no elevation-drop necessary at higher flow velocities

Equipment which can be Driven:

Harzer Wettersatz (Baader's blower), Chinese liberation pump, water-bag transport, winch, block and pulley, tire pump, ball mill, stamp mill, Chilean mill, vibrating screen, sizing drum, logwasher, jig, buddle, bumping table

Replaces other Equipment:

generators and all mechanical drive systems, various turbines, combustion engines

Regional Distribution:

historically worldwide, presently in small-scale mining in Colombia and Ecuador

Operating Experience:

very good |————|————| bad

Environmental Impact:

low |————|————| very high

Suitability for Local Production:

very good |————|————| bad

Under What Conditions:

wood manufacturer, metal manufacturing shop, shop working with fiberglass-reinforced plastics

Lifespan:

very long |————|————| very short


depends on flood protection

Bibliography, Source: Manufacturer information, Agricola, Delius, v. Koning, Bach, Beyrich, Hartmann, Henne, Mager, Meyer, Muller, Ovens, Redtenbacher, J. Reynolds, T.S. Reynolds, Shaw, Utta, Garrad, Fyfield-Shayler, Hutte, Wagenbreth.

OPERATING PRINCIPLE:

Overshot and middleshot water wheels (wheels with scoops): containers attached at the periphery of the water wheel fill with water from the feeding stream and rotate the wheel under the influence of leverage forces due to the added weight and impact of the water. The scoops empty automatically at the lowest point of revolution.

Undershot water wheels (paddle wheels): Radially-mounted paddles set the wheel into rotation due to the impact forces of the water flow striking the paddles.

AREAS OF APPLICATION:

To win energy for:

- production of electrical energy or
- mechanical drive for machinery by utilizing the torque

REMARKS:

Water wheels were already described by Philon in 230 B.C.

Water wheels represent the simplest utilization of the energy from flowing water. They are basically differentiated as undershot, middleshot and overshot water wheels with horizontal axis; water wheels with vertical axis (e.g. bucket wheel, Ghatta/Nepal); and boat mill or river mill (as special cases of undershot wheels, see Technical Outline 10.8).

Water wheels are generally not susceptible to sediment build-up or ice, but flood-protection measures should be taken regardless. An advantage of well-constructed wheels (with roller bearings) is the high degree of efficiency even with only partially-full buckets or scoops.

Further advantages of water wheels are:

- high moment of inertia, making it particularly suitable for direct drive of slowly-rotating machines and machines with fluctuating resistance (e.g. crushers)

- simple hydraulic design and construction

- suitable for small, highly fluctuating water quantities

- when well-constructed up to 80 % rate of efficiency

- low maintenance expenditures, easy to repair, long lifespan

- simple local production possible

- a storage of water and therefore energy is possible with the help of reservoirs

Disadvantages of water wheels are the heavy weight and large space requiement, as well as the losses with overshot wheels due to height and suspension.

The rotational speed should be as low as possible to avoid premature emptying of the scoops due to the greater centrifugal forces created at higher rotational speeds.

A high initial torque (around 10 rpm) is required. Unlike turbines, water wheels are gravity machines. They are more efficient than turbines (in the category of up to 10 kW) when well constructed. Due to the low rotational operating speed (15 · 20 rpm) the conversion into other forms of energy is quite difficult (electric) or impossible (pneumatic). For low-speed mechanical direct-drive systems (up to 300 rpm), "step-ups" in gearing (reduction in gear ratio) can be realised with force-locking or form-locking belt-drives.

A long-distance transmission of the energy generated by water wheels is not possible. Therefore producer and consumer are both directly bound to the location of the water energy-source. This can require expensive hydrological construction measures, without which the utilization of the hydromechanical energy may not be possible at all. The climatic and geographic conditions in the Andes, characterized by periodic high rainfall and sufficient topographical relief, provide numerous locations which offer an opportunity to utilize the energy of flowing water through water wheels and small turbines. The high demand for processing water in the hydromechanic beneficiation of ores in small-scale mining operations frequently justifies establishing a hydromechanical energy supply.

Types of water wheels: the 'Zuppinger' wheel is the most practical design for undershot water wheels.

Construction material: Wood and iron, fiberglass-reinforced synthetic
resins

Advantages of wooden water wheels:

+ can be disassembled

+ resistent to acidic water

+ no lime deposition

+ can be centered

+ simpler to construct, disassemble and repair


When used in conjuction with moor water, the wooden parts should be impregnated (with Roman salt) since moss disposition promotes rotting.

Water-wheels are seated in bearings of bronze or on bearing-blocks made of soapstone. In the situation where several overshot water wheels are installed on the same level in series, the feeding water is directed through a chute past all of the water wheels; the wheels are filled through opening of bottom gates in the chute.

Ordinary water wheels operate only in one rotational direction. For haulage purposes, reversible bull wheels (overshot) have been developed. They consist, as a unit, of two water wheels with opposite fill directions. By changing the incoming flow from one to the other intake chute, the wheel's rotational direction can be reversed. Bull wheels of up to 15 m or more in diameter were frequently installed underground just above the drainage level.

For shaft haulage with bull wheels, outputs ranging between 7.4 to 11 kW were achieved with haulage speeds of 0.65 to 1.4 m/see and bucket volumes of up to 1.2 m . This system functioned down to depths of 550 m maximum.

SUITABILITY FOR SMALL-SCALE MINING:

Water wheels are very suitable for application in small-scale mining due to the numerous possibilities to use them in direct mechanical drive of various mining and beneficiation machines. Despite the relatively high investment costs, water wheels are simple to manufacture locally using native construction materials; additionally, they are characterized by very low operating, maintenance and repair costs.


Fig.: Undershot water wheel in a mill. Source: Eckholdt.


Fig.: Water wheels for supplying energy in mining: A feeding chute, A' discharge chute (the supports are not shown), R1 bull wheel, S cable drums, SS cable pulleys, B brake mechanism (pulling on 1 releases the brake, pulling on 2 activates the brake). R2 wheel to operate "Frahrunst" or oscillating manlift ladder, SG connecting rods for manlift, KW angular rods for manlift (cast-iron), G shaft rods for manlift.

Source: Wagenbreth.


Fig.: (above): Curve of degree of efficiency of an overshot water wheel (1) compared to a Francis turbine (2) and a Kaplan turbine (3) by partial loading. Source: Konig.


Fig.: Limits of application of various water wheel. Source: Beyrich.

19.7 Horizontal water wheel

General Mining
Energy, Energy Techniques

engl.:

bucket wheel mill

germ.:

Loffelrad

span.:

rueda de cucharas

in Nepal:

ghatta

TECHNICAL DATA:

Dimensions:

diameter 0.7 - 2 m, height of wheel approx. 0.2 - 1 m, 7 - 10 inserted flat or curved wooden paddles (18 max.)

Weight:

from approx. 25 kg

Form of Driving Energy:

hydromechanic

Mode of Operation:

continuous

Throughput/Capacity:

up to approx. 1 kW, 50 - 100 rpm

Technical Efficiency:

approx. 10 - 30 %, in Nepal (with ghatta) 20 - 25 %; much higher (50 - 55 %) with high-quality bearings and paddles as well as sheet-metal guides at the inlet

Operating Materials:


Type:

water

Quantity:

40 - 80 I/sec

ECONOMIC DATA:

Investment Costs:

if locally produced starting at approx. 100 DM

Operating Costs:

very low

Related Costs:

hydro-engineering: weir, drainage channel, inlet chute

CONDITIONS OF APPLICATION:

Operating Expenditures:

low |————|————| high

Maintenance Expenditures:

low |————|————| high

Location Requirements:

Relatively large difference in elevation with relatively low flow quantities necessary, e.g. 20 I/sec and 10 m vertical drop yields 0.5 kW, minimum head approx. 2 m. Paddle wheels must always be erected above the highest water level.


Equipment which can be Driven: examples are gold centrifuge concentrators, possibly vibrating screens, vibrating chutes small Jigs, buddies, small vibrating and concussion tables

Replaces other Equipment:

small electrical motors or internal combustion engines for drive-systems with vertical axes

Regional Distribution:

still in use today, and being promoted, in Nepal for driving grain mills with up to 50 kg milling stones; in Chile on the island of Chil6e, in Bolivia in Dept. Cochabamba as a technique for processing harvested crops, otherwise in the Balkan

Operating Experience:

very good |————|————| bad

Environmental Impact:

low |————|————| very high

Suitability for Local Production:

very good |————|————| bad

Under What Conditions:

simple wood manufacturing. The paddle-wheel is technically the simplest and smallest hydromechanical drive-unit; improved wheels are made of iron.

Lifespan:

very long |————|————| very short

Bibliography, Source: Nepal, Hydronet, 1/88, 1/89, 2/89

OPERATING PRINCIPLE:

Paddle wheels are the predecessors of impulse (free-jet) turbines and have a vertical axis. The high-speed water flow strikes the flat or spoon-shaped paddles at an angle tangential to the wheel, which sets it into rotation.

AREAS OF APPLICATION:

Hydromechanical drive for machines with low power output and relatively low rpm.

REMARKS:

Formerly widely distributed in the Balkan, Austria and South Tyrol. As post-harvest technique still applied today in Nepal, Chile and Bolivia

An advantage is the vertical axis, which enables a direct coupling with, for example, milling stones, Chilean mills, etc.

A further advantage is that this low-maintenance drive unit can be placed directly underneath the machine to be driven.

A disadvantage is that rpm of a paddle-wheel drive cannot be controlled or influenced externally.

In Nepal the bearing between the water wheel and milling stone is made of bamboo, which has proven to be much cheaper, longer lasting and very simple to manufacture.

In Nepal, in the meantime, several paddle-wheel drives have been equipped with small counter-current generators for producing electricity for lighting purposes.

SUITABILITY FOR SMALL-SCALE MINING:

Horizontal water wheels are simple and economic power generating devices up to 1 kW, which could be employed to run mineral concentration equipment directly coupled to the turbine shaft.

19.8 Rope turbine

General Mining
Energy, Energy Techniques

germ.:

Seilturbine

span.:

turbine a cable

Manufacturer:

Campo Nuevo

TECHNICAL DATA:

Dimensions:

two pulleys approx. 1.5 m in diameter, approx. 10 m apart

Weight:

approx. 50 kg

Form of Driving Energy:

energy from flowing water with low elevation difference but high flow velocity

Mode of Operation:

continuous

Throughput/Output:

approx. 0.5 kW at very low rpm

Operating Materials:


Type:

water

ECONOMIC DATA:

Investment Costs:

local production: approx. 200 DM

Operating Costs:

low

Realted Costs:

none, possibly minimal hydrological construction measures

CONDITIONS OF APPLICATION:

Operating Expenditures:

Iow |————|————| high

Maintenance Expenditures:

low |————|————| high

Location Requirements:

locations with small elevation differences and small quantities of flowing water, but high flow velocities, are appropriate for rope turbines. The efficiency can be improved by building a channel (e.g. with corrigated sheet-metal or halved PVC-pipes) to control the water flow and to take up the rope of the turbine.

Equipment which can be Driven:

low-speed rotationing devices such as mech. buddies, Harzer Wettersatz (Baader's blower)

Replaces other Equipment:

geared-down electric-motor drive systems

Regional Distribution:

to date not distributed

Environmental Impact:

low |————|————| very high

Suitability for Local Production:

very good |————|————| bad

Under What Conditions:

simple wood manufacture for pulleys, synthetic rope, rubber parts from car hoses for buckets

Lifespan:

very long |————————| very short

Bibliography, Source: Manufacturer, Hentschel

OPERATING PRINCIPLE:

A rope is suspended longitudinally or diagonally along a flowing stream by means of two pulleys, with the lower rope strand hanging in the water. Flexible rubber buckets are attached to the rope with the open end facing upstream; the buckets fill with water which causes them to be pulled along with the flow due to the ensuing hydraulic pressure head. In the process, several buckets are always under water at any given time. At the lower, downstream pulley the buckets are raised out of the water and emptied. The upper rope strand travels above the water surface back toward the upstream pulley, maintaining a continuous revolving system.

AREAS OF APPLICATION:

To produce slow rotations at high rpm in areas with relatively low energy from flowing water.

REMARKS:

The extremely low rotational speed (< 100 rpm) generated with this rope-turbine is disadvantageous, limiting its application as a drive-unit to just a few machines, such as buddies. There is a need here for further research and development efforts.

SUITABILITY FOR SMALL-SCALE MINING:

Further development of the rope turbine is necessary before it can become suitable for small-scale mining purposes. Furthermore, it remains rather inappropriate for practical application as a drive system.

19.9 Solar cells

General Mining
Energy, Energy Techniques

engl.:

photovoltaic energy

germ.:

Solarzellen, Photovoltaik

span.:

celdas solares, fotovoltaica

TECHNICAL DATA:

Dimensions:

depending on capacity approx. 1 m²/100W

Weight:

2.5 kg/100 W

Form of Driving Energy:

solar

Mode of Operation:

semi-continuous analogous to intensity of daytime radiation

Throughput/Capacity:

unloaded: 0.55 V per cell; loaded up to 0.35 V, nominal voltage 0.45V

Technical Efficiency:

13 - 15 %

ECONOMIC DATA:

Investment Costs:

approx. 20 DM per Watt, tendency falling

Operating Costs:

none

Related Costs:

storage batteries, regulator

CONDITIONS OF APPLICATION:

Operating Expenditures:

low |————|————| high

Maintenance Expenditures:

low |————|————| high

Location Requirements:

sun, global radiation

Equipment which can be Driven:

none, area of application is, for example, charging station for electric lamps; lighting with energy-saving lamps, direct current vibrator

Replaces other Equipment:

smallest generators for electric power production

Regional Distribution:

worldwide, and increasing

Operating Experience:

very good |————|————| bad

Environmental Impact:

low very |————|————| high

Suitability for Local Production:

not possible

Lifespan:

very long |————|————| very short

Bibliography, Source: GTZ, Suntronic, Rau

OPERATING PRINCIPLE:

The solar cell photovoltaically transforms available light energy into electric current. Solar cells consist of mono or semicristalline or amorphous silicon that is doped with boron or posphorus N/P. Electrodes are placed onto the surface and back side. During insolation, free ions as charge-carriers are created which produce voltage in the solar cell by diffusion. Power and voltage can be increased by parallel or serial connection of several individual cells.

AREAS OF APPLICATION:

Solar cells are suitable for generating power in the low-voltage or low-power range, e.g. Iighting, charging of electric mining lamps, charging of booster batteries for lighting purposes.

REMARKS:

Due to technical simplification of the production process, the manufacturing costs of solar cells will be decreasing in the future.

Solar cells are still characterized by very high investment costs because of the technically complicated production process. They can, therefore, only be recommended for the lowest capacity range. Their use in small-scale mining in Latin America can be considered appropriate, since especially in the low-power range up to 200 W, a very definite demand exists for energy generation for:

- lighting, e.g. energy-saving lamps
- mining lamp recharging stations
- audiovisual communication media (TV, radio, etc.)
- The smallest vibrators for beneficiation purposes

The external temperature affects the electrical output of solar cells. As a general rule, the lower the temperature, the higher the capacity (0.3 % per C°). Altogether, solar cells operate in a temperature range from - 50° C to + 120° C (see table below). This fact, combined with the long duration of sunshine and the high quantity of global radiation of the sub-tropical region of the Andes (South Peru, Bolivia) provides ideal natural conditions for the use of solar cells.

Therefore, photovoltaic energy production in the lowest power range is, without question, an ecologically favorable alternative to other generators (internal combustion engines, small hydro-electric generators). In Bolivia, small mining operations have been observed using a gasoline-driven generator for several hours per day only for recharging mining lamps.

SUITABILITY FOR SMALL-SCALE MINING:

Only in the lowest capacity range (up to a maximum of 200 W) are solar cells competitive with other energy sources with regard to investment costs. The independence from operating materials and the very favorable natural climatic conditions support the use of solar cells in small-scale mining in Latin America for the purpose of charging battery-lamps for underground useage.

Table: Typical temperature coefficients for solar cells. Source: Suntronic Company information

Temperature-Range:


- 65°C to + 125°C


Maximum temperature:


+ 250°C for 30 minutes (briefly up to 300°C)



increases


below


VOLTAGE

2 mV°/C



25° C


decreases


above



increases


below


CURRENT


25 µA cm²/°C


25° C


decreases


above



increases


below


EFFICIENCY


0.3 %/°C


25°C


decreases


above


19.10 Solar collector (solar thermal)

General Mining
Energy, Energy Techniques

engl.:

low temperature collectors, flat collectors

germ.:

Sonnenkollektor (solarthermisch), Niedertemperaturkollektoren, Flachkollektoren

span.:

colector solar (termico solar), colectores de baja temperature, colectores pianos

TECHNICAL DATA:

Dimensions:

depends on size and radiation intensity

Driving Energy:

possibly circulating pump to transport the medium

Form of Driving Energy:

intensity of radiation, for circulation electric energy

Alternative Forms:

gravity collector, i.e. utilization of density differences of the various


warm media

Mode of Operation:

continuous

Technical Efficiency:

between 65 % and 85 % (maximum) and losses between 1.5 and 7.5 W/m²K

Operating Materials:


Type:

collector medium, e.g. water, oil

ECONOMIC DATA:

Investment Costs:

in Germany approx. 300 to 800 DM/m² depending on design

Operating Costs:

very minimal

CONDITIONS OF APPLICATION:

Operating Expenditures:

low |————|————| high

Maintenance Expenditures:

low |————|————| high

Location Requirements:

high radiation energy during daylight hours over the entire year is a prerequisite

Equipment which can be Driven:

can be used for heaters, pre-heating of process water, etc.

Replaces other Equipment:

helps to reduce fuel consumption, especially in poorly-vegetated arid zones

Regional Distribution:

in the meantime worldwide

Operating Experience:

very good |————|————| bad


Disregarding large fluctuations in the daily and yearly solar radiation values

Environmental Impact:

low |————|————| very high

Suitability for Local Production:

very good |————|————| bad

Under What Conditions:

simple workshop for handling metals and synthetic materials

Lifespan:

very long |————|————| very short

Bibliography, Source: Kleemann, Meliss; Patent E. Korber P.2713 810.9 and P 2804999.2

OPERATING PRINCIPLE:

Sun collectors transform incidental sunlight into heat. The flat collectors accomplish this by means of an absorber, a black metal or plastic plate that absorbs light and transforms it into feelable heat. Underneath the absorber are pipes through which a transport medium for the heat (e.g. water, oil, air) flows. This medium conveys the heat from the absorber to the user. In order to minimize heat loss to the surroundings, the collector is lined with a thermal insulation on the back side and is covered over the front with one or more transparent plates. This collector-unit is oriented toward the average direction of radiation in order to transform mostly vertical radiation into as much energy as possible.

FORMS OF APPLICATION:

Heating of process water in the beneficiation processes. Air collectors for drying.

SPECIAL FORMS OF APPLICATION:

Results of technology (warm water for washing, showers, heating, etc.).

REMARKS:

In addition to improving working conditions, the use of warm processing water produced substantially better results from wet mechanical beneficiation by improving the degree of separation achieved in the sorting processes. This effect can be attributed to the lower viscosity of warm water; the warmer the process water, the better the sorting conditions. Moreover, the warming up of processing water provides more confortable working conditions where direct contact is made with the processing water (e.g. manual activities where the hands are under water); examples are hand picking in sluices or hand jigging with screens.

Global radiation values vary significantly depending on the location, ranging between approx. 800 kWh/am² (Iceland) and more than 2200 kWh/am² (in sub-tropical desert regions, e.g. SW-USA/Mexico, highlands of Peru/Bolivia, the Sahara, Arabian Peninsula, the Kalahari and Namib as well as central Australia).

The simple flat collectors also can be equipped to serve as sun-wind generators, whereby the surface of the collector serves as an accumulation area for the wind and thus accelerates the air. This air then used to drive a cylindrically-shaped horizontal Savonius rotor (0.5 m diameter). Through the use of wind sails, this rotatable device can be turned so that the rotar is oriented toward the wind during periods of strong winds.

Materials for the collectors:

Cover:


Corrugated plastic sheets

light, but somewhat opaque

Acrylic tiles

(transmits less sunlight)

Glass

best cover material

Absorber:


Plastic (from 30 DM/m²)

poor heat conduction

Aluminium (approx. 120 DM/m²)

possible corrosion if combined with Cu parts

Steel (approx. 120 DM/m²)


Stainless steel (approx. 12O DM/m²)

very long lasting

Copper (approx. 200 DM/m²)

best heat conduction, very long lasting

Isolation:


Pu-foam


Polystyrene


SUITABILITY FOR SMALL-SCALE MINING:

Sun collectors are particularly suitable for pre-warming of processing water used in small-scale mining equipment in order to lower energy costs and Improve separation results.


Fig.: Operating principle of a flat collector. Source: Klemann.

19.11 Water turbine

General Mining
Energy, Energy techniques

engl.:

water turbine (mechanical and electrical application)

germ.:

Wasserturbinen (mech. und elektrische Nutzung)

span.:

turbine a ague (aprovechamiento mec. y electrico)

Manufacturers:

Campo Nuevo Ossberger, yolk, Voith

TECHNICAL DATA:

Dimensions:

depends on capacity, e.g. for cross-flow (impulse) turbine with 2.5 kW output: turbine wheel 200 mm in diameter, 82 mm in width

Weight:

25 kg for above-mentioned example

Form of Driving Energy:

hydromechanical

Mode of Operation:

continuous

Throughput/Capacity:

practical up to 30 kW

Technical Efficiency:

cross-flow turbine (75 - 82 %), Pelton turbine (75 - 86 %), Kaplan turbine (up to 90 %), Francis turbine (up to 90 %), total degree of efficiency with generator: 50 - 80 %, mechanical utilization (70 - 80 %)

Operating Materials:


Type:

water

Quantity:

depends on fall head of water and size of turbine


N [kW] = n [%] × Q [m³/sec] × h [m] × 9.81 [m/sec²]

ECONOMIC DATA:

Investment Costs:

local production in Bolivia: 200 US$/kW without penstock (pressure pipe)

Operating Costs:

very low

Related Costs:

gearing, hydrological engineering measures, flood protection

CONDITIONS OF APPLICATION:

Operating Expenditures:

low |————|————| high

Maintenance Expenditures:

low |————|————| high

Location Requirements:

requires topographical and hydrographical conditions such as minimum flow and minimum head (approx. 5 m) of water must exist

Equipment which can be Driven:

high-speed beneficiation equipment, e.g. crusher, sizing drum, vibrating screen, pumps, Chiliean or edge mill, jig, heat generator, bumping or concussion table, compressors; can additionally be used to generate electrical energy, e.g. with car generator

Replaces other Equipment:

all other drive units

Regional Distribution:

worldwide, but seldom used for direct drive

Operating Experience:

very good |————|————| bad

Environmental Impact:

low |————|————| very high

Suitability for Local Production:

very good |————|————| bad

Under What Conditions:

qualified metal manufacturing shops: blades can partially be made from stainless steel pipe sections, are also made in developing countries: Bolivia, Colombia, Ecuador, etc.

Lifespan:

very long |————|————| very short

Bibliography, Source: Manufacturer information, T. Hentschel, Meier, Meyer, v. Konig, Elliott, Gate, Inversin, FAKT

OPERATING PRINCIPLE:

Unlike water wheels, which transform only the energy associated with the weight of the water, turbines utilize the flow-energy of water which, upon striking an obstruction (in this case the turbine blades), is partially converted into kinetic energy as pressure. Depending on the water head (height difference) and quantity, different types of turbines (cross-flow turbines, Pelton, Francis and Kaplan turbines) are employed. The operating range of the various types are shown in the figures.

The cross-flow turbine is a radial, partial-admission impulse (free-jet) turbine. It is classified as a slow-speed turbine on account of its low specific rotational speed (low rpm). The water jet stream is formed into a rectangular cross-section by means of a distributor. It flows through the blade ring of the cylindrically-shaped runner first from the outside inwards and then, after passing through the center of the runner, from the inside outwards. The run away speed (off-load) is 1.8 times the on-load speed; the degree of efficiency is good at part load of the turbine.

The Pelton turbine is a tangentially-admitted free jet impulse turbine in which the cup-shaped blades (buckets) are forged, screwed or cast onto a disk. The disk shaft can be set vertically or horizontally, the buckets are loaded tangentially through one or more (maximum of four) jet nozzles; a jet needle valve, operated by a governor, controls the Jet discharge by changing its cross-sectional area. The jet is split into two flows which are discharged from opposite sides to avoid any unbalanced thrust on the shaft. The rotational speed is less than that of Francis turbines. An increase in the diameter of the runner further reduces the rotational speed. Pelton turbines are well suited for smaller flow volumes at higher heads (falling heights). They are characterized by a very flat efficiency curve at partial load of the buckets. Already at 8 % (single-nozzled) and 4 % (double-nozzled) maximum capacity, a high degree of efficiency can be achieved (nearly 90 % at sufficiently high head). The run away (off-load) is approx. 2.0 times the on-load speed. Pelton turbines operate in atmospheric air pressure, requiring that they hang freely and are never submerged under water even when highest water levels are reached.

The Francis turbine is a radially-admitted reaction turbine in which a stay ring with adjustable guide vanes directs the water flow into the runner, which exits along this same axis. Francis turbines are well suited for larger flow quantities at small and intermediate heads, they are characterized by their high-speed operation and have a run away speed (off-load) of revolution 1.8 to 2.1 times the on-load speed.

The Kaplan turbine is constructed as a propeller with 2 - 7 wing-shaped, rotatable blades which are axially loaded with water directed through a stay ring with similarly adjustable gates. It is suitable for handling very large flow quantities at the smallest of water heads (falling height); it has a run away ratio (off-load: on-load) of 2.3 - 2.5 and has a relatively poor efficiency at partial loading.

Another important type of turbine which, depending on its design, can operate more as propeller or Francis turbine, is a pump employed as a turbine. Pumps are produced around the world in great numbers, operate at high efficiency, and can be manufactured at lower cost compared to turbines. By reversing flow direction, pumps can operate as turbines.

USE AND CONVERSION OF ENERGY:

The mechanical utilization of the energy from flowing water as driving power is both possible and practical for the majority of machinery used in small-scale mining. The ideal turbine type for this purpose has proven to be the cross-flow turbine. It is simple to produce locally and operates at a pressure range which allows the investment costs for the penstock (pressure pipe) to remain low. Small useable drops in elevation with large flow quantities lead to lower penstock costs, but generally higher costs for hydraulic engineering measures. High pressure heads (greater elevation drop) increase the penstock costs but require less hydraulic engineering construction work. An economical optimum lies in the pressure-head range which allows the use of locally-produced, reasonably-priced raw materials (for example, PVC up to about 50 m pressure head).

The rotational speed of cross-flow turbines lies in the range of 200 to 1000 rpm, and is thus well suited as a drive-unit for compressors. Modern axial-flow screw compressors operate at a rotational speed between approx. 1000 and 2800 rpm. These rotational values can be reached through the use of chain or V-belt drive systems.

The starting torque of electric drive-units is markedly less favorable than that of hydromechanical drive systems, as revealed during trial testing performed with small crushers common to small-scale mining.

The generation of low voltage electricity (12 V DC) is possible using common commercially-available automobile generators of up to around 500 W capacity. Booster batteries as truck batteries are also locally available. 12 V DC electricity can serve as the energy source for:

- energy-saving lamps
- television
- refrigerators
- vibrator motors
- charging stations for mining lamps, etc.

The generation of alternating-current voltage is similarly possible, however with the following disadvantages for use in small-scale mining in developing countries:

- high investment costs for the generation, transport and re-conversion of the electrical energy source,

- the low degree of efficiency, the larger installation and corresponding hydraulic potential requiret at the turbine location- the greater complexity of the installation, which in developing countries can cause significant maintenance and repair problems for the user,

- the difficulties with regulation - the regulation of frequency and efficiency poses relatively major technical problems. Hydraulic or electronic regulating systems consume the unused electrical power as heat resistance or regulate the inflowing water

- the overload-protection system, which protects the generator from rotating too fast. Reasonably-priced, converted motors serving as generators are capable of withstanding only up to approx. 1.2-times the rated speed without being damaged. Generators which safely operate up to twice the rated speed are very expensive,

- major difficulties with local manufacture and maintenance of this equipment.

Of advantage is the fact that electrical energy is easily transportable via power lines.

COMMENTS REGARDING LOCAL PRODUCTION:

Cross-flow turbines are the easiest to manufacture locally. The runner can be equipped with blades made of either curved sheet-metal or pipe sections sawed in half lengthwise.

Pelton turbines can either be cast (of bronze) in one piece using the wax smelting procedure, or constructed of individual blades (bronze or cast-iron) mounted to a disk with a central shaft. Single blades as models are available on the machinery-parts market, whereby the width of the blade should be approx. 3 times the maximum jet diameter. The greater the number of blades, the better the degree of efficiency. Of primary importance is an exact balancing of the runner.

AREAS OF APPLICATION:

For utilization of water flow energy (hydropower) for low-output requirements in the low-pressure range (5 - 50 m head).

- the direct operation of machines for mining and beneficiation
- the conversion of flow energy into other forms of energy:

* compressors for generating pneumatic energy for use in underground mining (compressed air)
* generators for producing electrical energy, for example through 12 V car generator
* heat generators for producing heat.


REMARKS:

Due to the fact that cross-flow turbines are recommended for use only in the low-pressure range, locally produced plastic pipes can be employed for the penstock, which offer the advantages of being inexpensive and less susceptible to frost. Care should be taken, however, that UV-resistant pipe material is employed to avoid having to cover the penstock. The hydraulic construction measures must include the incorporation of sedimentation chambers (sand traps), since suspended particles can lead to abrasion of the turbine runner.

For direct utilization of torque, the turbine is especially well suited for small-scale mining application in developing countries:

- high starting torque leads to drive-system efficiency (output) which lies as much as 50% below that of electric motors

- the altitude-independent efficiency of turbines compared to electric generators and internal combustion engines (small capacity, more fuel consumption at higher elevation) makes it preferable to use turbines with direct utilization of torque. Numerous small-scale mines in the Andes operate at elevations higher than 4000 m.

A curve of efficiency values for the various types of turbines is presented in the figure. Type BYS is a cross-flow turbine locally manufactured in Nepal of the simplest materials. The curve shows that even handcrafted turbines can achieve a high degree of efficiency (> 70 %).

SUITABILITY FOR SMALL-SCALE MINING:

Small cross flow turbines with direct utilization of torque by means of belt or chain drive systems represent ideal' versatile drive-units which have numerous possibilities for application within the geographical conditions and technical requirements which characterize small-scale mining in Latin America Low-cost local production can also generate technological effects outside the mining sector which provide a stimulus for regional development.

Other types of turbines require more complicated regulation and hydraulic engineering measures' making them more appropriate for medium-scale mining operations.


Fig.: Schematic diagram of a Francis turbine (from Meier) and detailed diagram of a runner (I.Z.E.)


Fig.: Design drawing of cross-flow turbine. Source: Ossberger company information.


Fig.: Pelton turbines: jet needle valve and defection of jet in a blade (above), deflector and jet needle valve for regulating flow (below). Source: Meier: runner from a Pelton turbine. Source: I.Z.E.


Fig.: Schematic diagram of double-nozze Pelton turbine. Source: Meier.


Fig.: Degree-of-efficiency curves for different turbine types. Source: Meier.


Fig.: Range of application for different types of turbines for small-scale hydropower needs. Source: Das Wassertriebwerk 10/82:

1 = A-pipe turbine,
2 = S-pipe turbine,
3 = compact regulated propeller turbine,
4 = special construction, pipe and Kaplan turbine,
5 = spur turbine,
6 = Reiffenstein reaction trubine,
7 = Francis compact spiral turbine,
8 = Francis spiral turbine (horizontal),
9 = special construction Francis spiral turbine,
10 = Mini jet turbine, 4 jets (vertical),
11 = small jet turbine with belt drive,
12 = jet turbine, 1 jet (horizontal),
13 = jet turbine, 2 jet (horizontal),
14 = jet turbine, 3 to 4 jet (vertical),
15 = special construction jet turbine,
16 = Ossberger cross-flow turbine.

19.12 Internal combustion engine

General Mining
Energy, Energy Techniques

germ.:

Verbrennungsmotor

span.:

motor a combustion, motor a gasoline

Manufacturer:

Briggs/Stratton, USA, Liste

TECHNICAL DATA:

Dimensions:

dependent on type and horsepower; internal combustion engines are characterized however by low specific weight (per horsepower) and performance values, e.g. for 20 kW gasoline engine 0.7 × 1 × 1 m

Weight:

starting at approx. 40 kg up to several 100 kg

Form of Driving Energy:

burning of biogenic fuels

Mode of Operation:

continous

Throughput/Capacity:

from 2 kW up to several 100 kW

Technical Efficiency:

25 %(gasoline), 38 %(diesel)

Operating Materials:

gasoline or diesel starting at approx. 21/h; lubricants in nominal quanties

ECONOMIC DATA:

Investment Costs:

for small 5 PS engine approx. 320 US$ (August, 1987)

Operating Costs:

approx. 1 US$/h

Related Costs:

cost of maintenance and repair approx. 50 US$/year

CONDITIONS OF APPLICATION:

Operating Expenditures:

low |————|————| high

Maintenance Expenditures:

low |————————| high

Equipment which can be Driven:

mainly beneficiation machines and compressors as well as generators

Replaces other Equipment:

e.g. water turbines

Regional Distribution:

worldwide

Operating Experience:

very good |————|————| bad

Environmental Impact:

Iow |————————| very high


used oil, exhaust gases, noise

Suitabllity for Local Production:

unsuitable

Lifespan:

very long |————|————| very short

OPERATING PRINCIPLE:

Engines with one or more cylinders and two or four-stroke cycles, V-belt transmission.

AREAS OF APPLICATION:

Primarily for driving smaller beneficiation machines, compressors and generators.

REMARKS:

Internal combustion engines cover the entire range of energy from 2 kW to more than 100 kW, whereby smaller units are appropriate as direct drive systems which utilize torque. Larger systems, to the contrary, are coupled with generators for producing electric power. Internal combustion engines operate at rotational speeds Iying between 1000 rpm (large diesel engines) and 3000 rpm (small diesel and gasoline engines). The regulation of rpm is very simple, and consequently the conversion into other forms of energy can be accomplished without difficulties; this is significant to small-scale-mining especially for pneumatic drive-systems underground.

Internal combustion engines are generally very independent of location. Problem areas are the supplying of the necessary fuels and the losses in efficiency at higher altitudes; as a general rule, every 100 m increase in altitude results In the following efficiency losses:

for simple internal combustion engines

1.3%

for turbo-charged engines

0.9%

Internal combustion engines are characterized by low investment costs but very high operating costs. In addition, a number of other factors exist which characterize the use of internal combustion engines as an energy source In developing countries as unfavorable:

- difficulty in acquiring spare parts and maintaining imported products. In addition to the direct costs of repair, substantial financial losses can occur from operational disruptions caused by lengthy delivery times for spare parts.

- the poor infrastructure characterizing the majority of small-scale mining regions makes it difficult to maintain a continuous supply of fuel. Especially in the rainy season, remote mining areas are often inaccessible due to damaged roads. Further difficulties can arise due to bottle necks in the supply (e.g. strikes) from the mostly state-owned oil companies.

- high national transport costs as a result of the poor Infrastructure, on the one hand, and drastic increases in energy prices on the other. The fuel costs in Bolivia, for example, in the gold area of Tipuani, approx. 200 km from La Paz, are twice as high as in La Paz.

- the high-altitude topographical loation of many of the mine operations, such as in the Andes of Latin America, is disadvantageous for two reasons for one, the large losses in rated capacity of machines operated at high altitude (up to 50% at 5000 m above sea level) requires large-scale equipment at corresponding high investment costs, secondly' the low degree of efficiency leads to increased fuel consumption and therefore higher operating costs.

- ecological aspects.

SUITABILITY FOR SMALL-SCALE MINING:

Internal combustion engines are suitable for small-scale mining in situations where renewable energy sources are not available. Low Investment costs but relatively high operation costs and a limited lifespan characterize these engines, as well as their technically versatile application.

19.13 Compressed-air supply

General Mining
Energy, Energy Techniques

engl.:

compressor (compressed air tank, compressed-air lines, water separator, lubricator, etc.)

germ.:

Druckluftversorgung (Kompressoren, Drucklumank, Druckluftleitungen, Oler etc.)

span.:

abastecimiento de aire comprimido, compresores, tanque de aire comprimido, tuberia pare aire comprimido, lubricadores etc.

Manufacturers:

Mannesmann Demaq Atlas Copco, Kaeser, Frantz, Ingersoll-Rand

TECHNICAL DATA:



Dimensions:

compressors: ranging from 1 × 1 × 1 m to 2 × 3 × 4 m

pipeline:

50 - 600 mm diameter for pipes, 3/4" or more for hoses

Weight:

e.g. for stationary watercooled axial-flow compressor with 45 kW and 7.2 m³/min (8 bar): 860 kg e.g. for watercooIed piston compressor with 40 kW and 8 m³/min (7 bar): 1650 kg

Material:

pipes: steel, PVC; PE-hoses: rubber, fabric

Driving Capacity:

5 - 6.5 kW per m³ per min

Form of Driving Energy:

mechanical by electric motor, diesel engine

Other Opportunities:

hydromechanical

Mode of Operation:

continuous

Throughput/Capacity:

6 - 10 m/see air speed

Technical Efficiency:

10 - 15 % for total system

Operating Materials:


Type:

oil

cooling water

Quantity:

for axial-flow compressor

approx. 0,5 I/min × kW


for piston compressor


ECONOMIC DATA:

Investment Costs:

new equipment: up to 50.000 DM

Operating Costs:

high due to pressure losses from leakages

Related Costs:

compressed-air dryer, compressed-air lubricator, compressor compressed-air tank, flexible suspension system

CONDITIONS OF APPLICATION:

Operating Expenditures:

low |————|————| high


compressed-air lines

Maintenance Expenditure:

low |————|————| high


compressed-air lines

Personnel Requirements:

training for operation and maintenance is necessary

Location Requirements:

depends on drive-system (possibly hydromechanical) and cooling system (possibly water cooled). Important is the reduction of compressed-air losses due to leakage. In German coal mining these account for 35 % of the total compressed-air volume. These losses can be minimized especially by reducing the number of fittings and employing high-quality material. Besides the volumetric losses, pressure losses (pressure drop) also occur due to friction in the pipeline; the extent depends on pipe diameter, pipe surface conditions and particularly flow geometry.

Machines which can be Driven:

pneumatic drills, slopers (mining hammers), impact drills, pneumatic leg supports, chain saws, lamps, delivery and high-pressure pumps, fans, compressors, winches, drill-steel grinders, ratchet winches, lubrication guns, explosives pumps, loading equipment.

Regional Distribution:

worldwide in mining

Operating Experience:

very good |————|————| bad

Environmental Impact:

low |————|————| very high


depending on drive system, through exhaust fumes, used oil or oil from compressed air

Suitability for Local Production:

not suitable

Lifespan:

very long |————|————| very short


depends upon maintenance

Bibliography, Source: Roschlau, Atlas Copco manual, Fritzeche

OPERATING PRINCIPLE:

Piston, axial-flow and turbo compressors can be used to generate compressed air. Piston compressors compress the drawnin air by reducing the volume in the compression chamber through the stroke of the piston. They operate at 1000 rpm; the operating pressure can be regulated. Axial-flow screw compressors are displacement compressors in which static pressure is created through the rotation of the threaded axis which draws in air, compresses it, and rereleases it. They operate at rpms ranging from 1500 to 2500. Turbo compressors are used to generate large volumes of oli-free compressed air, under conditions of varying air requirements, through acceleration of the drawn-in air and subsequent conversion of the kinetic energy into static pressure.

In present-day mining, both stationary and transportable axial-flow compressors are commonly in use.

Compressed air tanks have three main functions, namely:

1. compressed air storage
2. improving cooling and condensation precipitation
3. equalizing pressure fluctuations in the system caused by tool operation

Compressed air tanks for mining purposes should have a volume equal to about one-tenth the rated output of the compressor (m³n/min). This applies when the compressor can be periodically disconnected (to protect the compressor) from a continuously running drive aggregate. Where the frequent starting of a directly-coupled drive unit must be avoided, a larger tank volume is required. The frequency of start-up operations should not exceed 10 per hour. The difference in pressure during regulation is approximately 1 bar.

The consumption of compressed air at 7 bar equals about:

2,5 - 5 m³ per drilling hammer
7 - 10 m³/min per overhead shovel loader
3 - 5 m³/min per hoist (winch)

The advantages of compressed air as an energy source are evident, according to Roschlau, in the pneumatic equipment itself:

- simple and sturdy construction,
- relatively small mass (low specific weight),
- employable in all operational activities,
- Infinitely variable setting, adjusting and regulating,
- extremely reliable in operation and function, therefore minimal down-time,
- automatic overload protection
- easy to handle maintain and repair,
- no safety problems (exhaust fumes, heating, etc.)
- escaping compressed air improves the climate at the work place (oxygen supply, cooling).

However, these advantages have serious consequences. Among these are following disadvantages:

- the total degree of efficiency of pneumatic equipment, at only around 15 to 20%, is significantly lower than that of other forms of energy,

- compressed air is the most expensive industrial energy source,

- high noise levels during operation of compressed air equipment

- enerqy conveyance requires the installation of an expensive pipeline network, involving substantial costs for maintenance and repair.

Compressed-air Line:

Compressed air pipes/hoses conduct the compressed air to the face where it is needed for driving the equipment. Hence the air line is installed as a large-diameter rigid pipe to a point just short of the working face, where hoses then complete the connections to the pneumatic equipment. The joints between pipeline sections, hoses, to lubricators and to pneumatic equipment are connected with clutch (claw) couplings.

Following the compressed-air tank, and possibly before the pneumatic equipment, a water separator should be installed into the compressed-air network. This device removes the moisture in the air either by having the air flow repeatedly through a screen mesh, or repeatedly deflecting the air so that it strikes the separator walls; both methods result in the moisture condensing and precipitating out. The collected condensate is withdrawn from the collecting container either automatically or by hand. This reduces the risk of occurrence of water-hammer or icing in the equipment.

made of PVC/PE:
For example: 0 50 mm, light, easy to install even around corners; couplings (connections) are difficult to obtain, modern glueable couplings of synthetic material are better and much cheaper - suitable for PE-pipes, also either welding or clamp-couplings with rated pressures up to 16 bar air-tight. 0 up to 1 10 mm: brass couplings, expensive and heavy, otherwise inexpensive, relatively long life-span, very low frictional resistance! Not easy to handle, since delivered in huge rolls.

made of steel
Purely rubber couplings are less expensive than PVC, standardized pipe-section lengths, corrodes easily from contact with condensed water, therefore filtering of the compressed air prior to its use is practical.

In surface facilities, exposed PE/PVC pipes must be covered with earth, straw, etc. in order to prevent adverse effects from UV radiation which lead to accelerated ageing of the plastic material.

Prior to the input of compressed air into the pneumatic equipment, the air must be mixed with oil to lubricate the operating motors. This is achieved through the use of compressed-air lubricators (oilers) which add oil in measured dosages.

REMARKS:

Compressed-air Lines

The pressure available to the consumer is also significantly influenced by the air conveyance system. Couplings and valves as well as smaller-diameter lines greatly reduce the pressure. Consequently, a comparatively larger diameter should always be used. The pressure drop is inversely proportional to the diameter of the line, raised to the fifth power. Even a small increase in diameter from 3/4" to 1" in a 10-m-long line can already reduce the pressure-drop loss to less than half. In general, about 10 - 15 % of the compression work is lost through friction.

The removal of water from the compressed-air line is essential. Condensed moisture collects in the low points of the pipeline and causes not only pressure drop, corrosion, and icing, but also water hammers (water shock) in the operating equipment. In addition to the use of water separators, the compressed air should be pre-cooled on the surface. The climatic conditions at the location play a major role; high temperature and high relative humidity lead to high water condensation in the pipeline.

In the event that the pressure of compressed air drops down under the operating pressure of the machine, an over-proportional decrease in the machine's efficiency results.

The overall efficiency of the compressed-air system is considerably affected by pressure losses through leakages. Such losses have averaged up to 35 % in coal mine in the German Ruhr area!! These losses mostly occur at the joints between pipe sections, which is another point favoring PVC-pipes.

SUITABILITY FOR SMALL-SCALE MINING:

The generation and supply of compressed air is the most important energy-technology installation for mechanized small-scale mining underground. In view of the high investment and fuel costs, the dimensioning of the facility becomes critical in determing the economical success of the operation.


Fig.: Pressure drop per 100 m of line at an average compressed-air pressure of 6.5 bar (5.5 above atmpspheric pressure) and an average temperature of 20°C, relative to compressed-air flow velocity and inner pipe diameter. Source: Hoffmann.


Figures
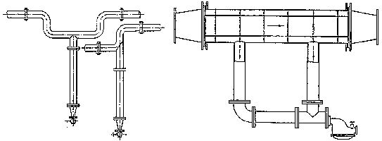
Fig.: Water separator. Source: Hoffmann
Fig.: Self-regulating (automatic) water separator for main compressed-air pipe. Source: Hoffmann.


Figures
Fig.: Draining of compressed air pipelines. Source: Hoffmann
Fig.: Water separator made from pipe and structural sections. Source: Hoffmann.

TO PREVIOUS SECTION OF BOOK TO NEXT SECTION OF BOOK