Back to Home Page of CD3WD Project or Back to list of CD3WD Publications

CLOSE THIS BOOKTools for Mining: Techniques and Processes for Small Scale Mining (GTZ, 1993, 538 p.)
Technical Chapter 12: Crushing
VIEW THE DOCUMENT(introduction...)
VIEW THE DOCUMENT12.1 Jaw crusher, jaw breaker
VIEW THE DOCUMENT12.2 Roll crusher, roll grinder
VIEW THE DOCUMENT12.3 Ball mill
VIEW THE DOCUMENT12.4 Stamp mill, hammer mill
VIEW THE DOCUMENT12.5 Chilean mill edge mill, roller mill
VIEW THE DOCUMENT12.6 ''See-saw'' crusher, ''rocker'' crusher

Tools for Mining: Techniques and Processes for Small Scale Mining (GTZ, 1993, 538 p.)

Technical Chapter 12: Crushing

BENEFICATION TECHNIQUES

12.1 Jaw crusher, jaw breaker

Mining General (Ore, Coal, Sand and Gravel)
Beneficiation, Crushing

germ.:

Backenbrecher, Knackwerk

span.:

chancadora de mandibulas, trituradora de mandibulas

Manufacturer:

Millan, Volcan, Denver Peru, Denver USA, FUNSA, MAFUQUI, Alquexco, Eq. Ind. Astecnia, IAA, INCOMAQ, COMESA, FAHENA, FIMA, Fund. Callao, H.M., MAGENSA, MAEPSA, Met. Callao E.P.S., Met. Mec. Soriano, Talleres Mejia, ASEA, FAMESA, MEPSA

TECHNICAL DATA:

Dimensions:

approx. 0.7 × 0.7 × 1.5 m minimum

Weight:

approx. 350 kg minimum

Extent of Mechanization:

fully mechanized

Power Required:

3 - 10 kW for <=2 t/h

Form of Driving Energy:

electric, diesel or gasoline driven internal combustion engine

Alternative forms:

very successful with turbine drive and transmission

Mode of Operation:

continuous

Throughput/Capacity:

from 350 kg/h

ECONOMIC DATA:

Investment Costs:

between 1000 US$ (350 kg/h) and 4000 US$ (1.5 t/h) for Bolivian production; etween 4000 US$ (1 t/h) and 18.000 US$ (2 t/h) for imported crusher cif La Paz

Operating Costs:

personnel wages, energy costs and minimal repair costs; cost of replacing jaws when worm

CONDITIONS OF APPLICATION:

Operating Expenditures:

low |————|————| high

Maintenance Expenditures:

low |————|————| high

Personnel Requirements:

low

Grain Size Material:

depends on type of crusher: here < 20 cm 0

Output:

crushing ratio of 5: 1 to 10: 1; smallest final grain size approx. 5 - 10 mm; only compressive loading: maximum grain size of feed up to 1,000 mm; crushed product approx. 100 mm (main area of application)

Replace other Equipment:

stamp mill

Regional Distribution:

worldwide

Operating Experience:

very good |————|————| bad

Environmental Impact:

low |————|————| very high


noise and dust pollution

Suitability for Local Production:

very good |————|————| bad

Under What Conditions:

local machine manufacturing

Lifespan:

very long |————|————| very short

Bibliography, Source: Taggert, Schubert, v. Bernewitz, Priester, Gerth, DBM, Callon, Althaus

OPERATING PRINCIPLE:

The Jaw crusher crushes the raw-ore feed by pressing it between two jaws, one fixed and one moveable, in a wedge-shaped crushing chamber. The moving Jaw pivots around its upper (feed side) axis. At its lower end, the Jaw is moved via an eccentrically-driven toggle system, which in turn increases or decreases the volume of the crushing chamber. During the decreasing stroke, the ore becomes broken, and subsequently slides deeper into the chamber as the Jaws open again, expanding the crushing chamber; this process repeats itself until the final grain size is reached, whereby the crushed ore falls out of the chamber through a slit at the bottom.

AREAS OF APPLICATION:

Pre-crushing and crushing of raw ore.

REMARKS:

Can successfully be mechanizing with turbines, whereby the starting torque of turbines has an advantageous effect, for example if the crusher is clogged; in this case, the power can be adjusted significantly lower than with electric power units.

Raw ore should first be screened µ® reduced feed quantities, lower energy costs.

The wear on the crushing Jaws depends greatly on the tenacity (toughness) of the feed material; sufidic ores rich in quartz, for example, can wear out a set of crushing jaws after only 30.000 t, galena-sphalerite ores in graywacke after approx. 60.000 t and carbonate iron-ores first after around 300.000 t (Gerth, et. al.).

Fine Jaw crushers have wider jaws and operate at higher rpms, with one jaw frequently being of concave construction so that the crushing chamber tapers down in almost parallel flanks, thereby minimizing the occurrence of fines.

Wear-resistant coating of crushing jaws with welding material (see 11.1) leads to an extended lifespan.

SUITABILITY FOR SMALL-SCALE MINING:

Jaw crushers are the most simply-constructed apparatuses for coarse preliminary crushing, and can also be locally produced in developing countries. The application of jaw crushers can significantly improve the efficiency of beneficiation operations.


Fig.: Operating principle of the single-jaw crusher. Source: Ullmann. a) crushing jaw c) supporting plate d) fixed plate B: eccentric pivot C: supporting-plate bearing.


Fig.: Jaw crusher. Source: Armstrong.


Fig.: Jaw crusher. Source: Gerth.


Fig.: Detailed diagram of a jaw crusher. Source: Bernewitz.

12.2 Roll crusher, roll grinder

Mining General (Ore, Sand and Gravel)
Beneficiation, Crushing

germ.:

Walzenbrecher, Walzwerk, Walzenmuhlen

span.:

trituradora de rodillos, chancadora de rodillos, molino de discos, laminador, molino de rodillos

Manufacturer:

Millan, Volcan, Denver

TECHNICAL DATA:

Dimensions:

approx. 0.7 × 0.7 × 1.5 m, roller die 25 cm or more

Weight:

approx. 350 kg

Extent of Mechanization:

fully mechanized

Power Required:

starting at approx: 5 kW

Form of Driving Energy:

electric motor, internal combustion engine

Alternative Forms:

possibly hydromechanic

Mode of Operation:

continuous

Throughput/Capacity:

approx. 700 kg/in

Technical Efficiency:

degree of comminution between 3:1 and 4:1

ECONOMIC DATA:

Investment Costs:

Denver mill, 2 t/h: 18.900 US $, Volcan mill, 500 kg/h: 5000 US $, Millan mill approx. 6500 DM including motor fob La Paz

Operating Costs:

labor costs, energy costs, minimal wear

CONDITIONS OF APPLICATION:

Operating Expenditures:

low |————|————| high

Maintenance Expenditures:

low |————|————| high

Personnel Requirements:

low

Grain Size:

> 20 - 25 mm (max. 100 mm)

Output:

100 % < 1.5 mm with especially homogeneous grain-size distribution

Replaces other Equipment:

other mills

Regional Distribution:

rare

Operating Experience:

very good |————|————| bad

Environmental Impact:

low |————|————| very high


especially dust and noise pollution

Suitability for Local Production:

very good |————|————| bad

Under What Conditions:

metal manufacturer for steel

Lifespan:

very long |————————| very short

Bibliography, Source: Priester, Schennen, Treptow, Gerth, Callon, Schubert

OPERATING PRINCIPLE:

The feed material is crushed between two counter-clockwise rotating rollers to a degree of fineness allowing it to fall through a slit at the bottom. In the event that the pressure becomes too great, the rollers deflect outwardly, increasing the gap between them and consequently also the final grain size.

AREAS OF APPLICATION:

Crushing of brittle ore in preparation of hydromechanic gravimetric sorting of medium-sized grain fractions.

REMARKS:

Roll crushers are known for producing a ground product with a very low proportion of fines.

30 - 200 g of hard-steel wear per ton throughput depending on hardness and tenacity of the feed material.

The roll crushing of hard minerals (igneous rocks, hard ores, gravel sediments) uses smooth Jaws, whereas the rollers for crushing medium hard or soft material (e.g. Iimestone, anhydrite, sedimentary Iron ores, etc. or salts, clays, soft brown coal, etc.) are fluted or serrated.

The roller diameters should equal approx. 20 times that of that largest grain-size contained in the feed.

SUITABILITY FOR SMALL-SCALE MINING:

Roller mills are suitable machines for fine crushing, which leads to extreme exposure of the feed in case of somewhat coarse intergrown ore avoiding further fine milling.


Fig.: Roll crusher. Source: Gerth. Above: side view; Below: plan view.


Fig.: Plan diagram of a roll crusher with swinging rollers. Source: Schennen.


Fig.: Roll crusher. Source: Treptow. Above: side view, Below: plan view.

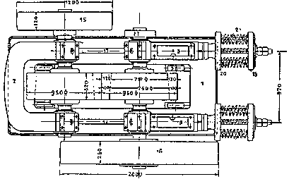
12.3 Ball mill

Mining General (Ore, Sand and Gravel)
Beneficiation, Crushing

engl.:

ball crusher, manual ball mill

germ.:

Kugelmuhle, Handkugelmuhle

span.:

molino de boles, molino de boles a mano

Manufacturer:

Millan, KHD, Volcan, Denver, Alquexco, Eq. Ind. Astecnia, IAA, Talleres Mejia, Buena Fortuna, COMESA, Met. Mec. Soriano, FAMESA, FAHENA, FIMA, FUnd. Callao, H.M., MAGENSA, MAEPSA, Met. Callao E.P.S.

TECHNICAL DATA:

Dimensions:

approx. 1.5 × 1 × 1 m

Weight:

approx. 150 kg

Extent of Mechanization:

manual to fully mechanized, depending on drive system

Power Required:

from 100 W up to several kW, e.g. approx. 7.5 kWh/t energy input to crush Volcanic sulfide ores, up to 50 kWh/t energy consumption for milling of hard quartzite and similar ores

Form of Driving Energy:

electric

Alternative forms:

manual, pedal drive, hydromechanic with water wheel

Mode of Operation:

semi-continuous/continuous

Throughput/Capacity:

1 t/h: 11 - 12 kW

Operating Materials:


Type:

Water grinding bodies (Zylpebs or balls)

Quantity:

bulk-volume approx. 25 - 45 % of mill capacity

ECONOMIC DATA:

Investment Costs:

manual ball mill: approx. 1000 DM when locally produced; Millan mill 500 US$,

Volcan mill:

10.000 US$, Denver mill: 22.000 US$ for mills with approx. 1 t/h throughput

Operating Costs:

replacement of worn milling balls, energy costs

Related Costs:

possibly thickener, since ground product is a slurry

CONDITIONS OF APPLICATION:

Operating Expenditures:

low |————|————| high

Maintenance Expenditures:

low |————|————| high

Personnel Requirements:

low

Location Requirements:

water availability is the only requirement

Grain Size:

approx. < 30 mm

Replaces other Equipment:

see-saw (rocker) crusher for fine crushing

Operating Experience:

very good |————|————| bad

Environmental Impact:

low |————|————| very high

Suitability for Local Production:

very good |————|————| bad

Under What Conditions:

small ball mills can be produced locally in good metal-manufacturing workshops, for example in the Philippines, where ball mills are being produced entirely locally.

Lifespan:

very long |————|————| very short

Bibliography, Source: Museum case de la Moneda, Potosi, Ullman, Schubert, Taggert, Stewart

OPERATING PRINCIPLE:

Manual hand-cranked ball mills with spiral feed chute are used for fine grinding. The ball mill is a rotating cylindrical crushing device which contains steel balls which comminute the material through percussive, shearing and compressive (squeezing) forces. Rotating the drum results in a continuous cascading of the balls and material contained inside. The duration of milling is determined by the final grain-size desired for the ground product. Water flowing through the mill removes the fine material.

AREAS OF APPLICATION:

Fine grinding of middlings, raw ores or pre-concentrates.

SPECIAL AREAS OF APPLICATION:

For special grinding steps where it is important that the products remain free of iron, such as in grinding of graphite, hard stones of flint, granite, etc. are used instead of the balls.

REMARKS:

In autogenous grinding, only the feed material itself, in the absence of balls or other grinding bodies, is subjected to the rotation of the mill drum. The grinding is achieved as a result of the larger material grains functioning as the balls, crushing the smaller or softer feed components. An example where autogenous grinding is applied is in the liberation of loosely-consolidated gold-containing conglomerates.

All types of ball mills produce high proportions of fine-grained product. In the case of particularly brittle minerals such as scheelite, wolframite, cassiterite, sphalerite, etc., this readily leads to overgrinding, resulting in poor recovery of the valuable mineral. Under these conditions, grinding needs to be performed with care, including prescreening and intermediate screening of the fines, and recycling of the screened overs back into the mill.

When the ground product is discharged from the mill as a slurry, the heavy material components remain in the mill longer due to their increased resistance to the flow forces. Consequently, grinding must be conducted correspondingly carefully, or an alternative method of removing the ground product from the mill must be employed, such as screening.

CONSTRUCTION INFORMATION:

Wheel bearings from cars are suitable as bearings for hand-cranked ball mills.

With belt or chain-driven systems, the entire mill housing is rotated.

The optimal rotational speed (rpm) is 75 % that of the critical rotational speed, or that where the centrifugal force causes the mill balls to remain on the drum perimeter:


n in min-1
D = mill diameter in m

For this rotational speed, at 30 % degree of filling, the power can be determined by the following formula

P (kW) ~ 10 GK (t) × V D (m), where GK is weight of balls in 1000 kg

For 20 % degree of filling the power is about 10 % higher, and for 40 % degree of filling about 15 % lower.

The rotational speeds for coarse grinding lie somewhat higher than for fine grinding, to a maximum of

D diameter of ball mill <= D/20

Old rail sections, cemented Into place, provide an inexpensive ball-mill lining.

The ends of the mill housing can be placed on roller or ball bearings, or on other forms of rollers or tires, the latter form can also be used to drive the mill, allowing good access to the front and back ends of the mill for easier handling at the feed and discharge points.

SUITABILITY FOR SMALL-SCALE MINING:

Hand-cranked ball mills have a rather limited application due to their low throughput. Useful primarily for regrinding of middlings. Small mechanized ball mills are appropriate in small-scale mining operations where finely-intergrown ore requires a fine liberation grinding, in which case a good supply of replacement parts must be available.


Fig.: Mill lining of old rails cemented to the drum. Source: Stewart.


Fig.: Schematic diagram of a ball mill. Source: Armstrong.

12.4 Stamp mill, hammer mill

Metal Mining (gold ores, tenacious ores)
Beneficiation, Comminution

germ.:

Pochwerk, Hammerwerk

span.:

bocarte, bateria de pisones, molino antioqueno, molino caiforniano, mortero (K.)

TECHNICAL DATA:

Dimensions:

approx. 4 × 2 × 1 m; 400 - 700 mm-deep die (box) in wet stamp mill, depending on final grain size (approx. 1 mm)

Weight:

several tons; stamp piston about 150 kg

Extent of Mechanization:

fully mechanized

Power Required:

depending on size, up to 10 kW

Form of Driving Energy:

mechanical, driven by hydropower or internal combustion engine; approx. 300 mm lift; approx. 60 stamps/mini approx. 0.6 PS/ stamp

Mode of Operation:

intermittent/semi-continuous/continuous

Throughput/Capacity:

approx. 0.8 - 2.5 t / 24 hrs / stamp

Operating Materials:


Type:

water for wet stamping

Quantity:

0.4 - 0.8 ft³/min. stamp

ECONOMIC DATA:

Investment Costs:

steel stamp mills approx. 10.000 DM including motor (in Colombia); wooden stamp mills approx. 1000 DM for a three-piston stamp mill of wooden-construction, and an additional 100 DM per stamp shoe. Wooden stamp mills are much cheaper, since the raw materials are generally less expensive and the mill easier to construct.

Operating Costs:

depends on mechanization

Related Costs:

drive system; e.g. approx. 1300 DM for wooden water wheel in Columbia

CONDITIONS OF APPLICATION:

Operating Expenditures:

low |————|————| high

Maintenance Expenditures:

low |————|————| high

Location Requirements:

water availability

Grain Size:

< 100 mm

Output:

high degree of crushing; final grain sizes < 2 mm

Replaces other Equipment:

crushers, other mills, Chilean (edge) mill

Regional Distribution:

historically widely distributed, today rather rare; used in Asia for Au and rice!, in Brazil, Ecuador and Colombia for processing gold ores; pedal-driven lever stamp mill used on harvested crops (e.g. in Nepal for threshing rice), historically used in Japanese gold mining (tail hammers).

Operating Experience:

very good |————|————| bad

Environmental Impact:

low |————|————| very high


with wooden stamp mills dust pollution, otherwise primarily noise pollution; for the construction of wooden stamp mills, wood consumption, which, however, is relatively negligible, since the wood is cut and formed on-site without much excess waste, and the life span of wooden stamp mills is quite long. The energy consumed during casting of steel stamp mills is much more environmentally deterimental.

Suitability for Local Production:

very good |————|————| bad

Under What Conditions:

for steel stamp mills: good metal manufacturers, possible production of stamps from old rails; for wooden stamp mills: carpenters, frequently working directly on-site; stamp shoes produced in metal foundries.

Lifespan:

very long |————|————| very short


wear almost exclusively limited to stamp shoe

Bibliography, Source: Treptow, Priester, Agricola, Calvor, Wagenbreth, Schennen, Reitmeier, Villefosse, Gaetzschmann, Rittinger, Cancrinus, de Hennezel, Diderot, Callon, Treptow/Sado, Clennell, DBM, Uslar, Kirschner.

OPERATING PRINCIPLE:

The stamp is raised by means of a camshaft and falls down, under its own weight, onto the stamp dle. The mill is constructed with a higher wall at the intake side to accommodate the feed input. The discharge side is equipped with slots, screens or weirs. The stamp die, where the crushing occurs underneath the stamp, is constructed of very hard material or of a sufficiently-thick layer of coarse material. In the recommended wet stamp milling, stamping is performed under water and the final ground product is flushed out by a supplementary stream of water. Multiple-stamp mills usually consist of four to six stamps.

AREAS OF APPLICATION:

For wet or dry crushing of coarse metalliferous ores.

SPECIAL AREAS OF APPLICATION:

For crushing and amalgamation of Au-ores (tray amalgamation).

REMARKS:

Sn, W, and other brittle ores are subject to overgrinding due to the high peak impact forces. For this reason, the use of the stamp mill in metal mining, except for gold ores, has been replaced by crushers.

Invented as a single-stamp dry stamp mill by Heinrich dem Jungerer (Henry the Younger, 1489 - 1568) in the Harz mining region of Germany.

Designed also as a tail hammer, front stamp, helve hammer etc.; this design with horizontally moving stamps is suitable for water-powered drive systems such as water levers or "Gnepfe", which are water see-saws equipped with a slowly-filling container at one end to raise the counterweight at the other end, whereby the water container abruptly empties Itself again.

Stamp mill drive-systems have traditionally almost always been hydromechanic, employing water wheels; exceptions were steam-operated mills.

The stamp shoe and stamp stem should always be independently constructed to permit easy replacement of worn shoes. However, the joint between the stem and the shoe must be rigid to prevent slippage and a resulting drop in efficiency.

Wooden stamp dies should be protected against wear by leaving a layer of already-crushed material in the die to buffer it from newly-added coarse feed; mills operated under these conditions then exhibit wear-resistant characteristics similar to steel stamps.

Of importance in the crushing process is the stamping frequency too low a frequency leads to sedimentation of the fine material and consequently a very fine milling with low throughput. Optimal stamp frequencies are in the range of approx. 30 min-1 for fine milling up to approx. 90 min-1 for coarse milling.

For stamp-mill processing in gold mine operations, it is important that the slurry does not contain any oil or grease, and therefore it is absolutely necessary to prevent lubricants from dripping into the stamp die. The presence of lubricants in the slurry causes immediate flotation of the fine gold in the successive separation processes.

In gold mining in Ghana and Ecuador, locally-produced mortars are used for manually-operated impact or stamp crushers. As stampers, car axles or axle stumps constructed of high-tensile steel can be used. The local name In Ecuador for these is "porron".

Fundamentally, the throughput of stamp mills is relatively low. Therefore, mechanized gold mines have chosen to replace them with crushers for coarse-crushing steps, and with Chilean (edge) mills for finer grinding requirements.

For use in gold mining, the stamp mill is equipped with a screen (e.g. in Colombia with perforated rubber, zarandas) on the discharge side, and with mercury, or even better silver-amalgamated replaceable copper plates, on the feed-intake side.

Coarse heavy material is often concentrated in the stamp die.

OPERATING EXPERIENCE:

In the Andean gold mining region of Colombia, locally-manufactured stamp mills are the most widely used crushers. These wooden stamp mills, made of chachajo-wood, are generally driven by primitive, overshot water wheels. The three to four catchers per stamp are located directly on the axis of the water wheel. Mills with between three and five stamps are in use. The time required to construct such a mill totals about three weeks for the complete installation. The stamp shoes are made of iron and are replaced approximately every 6 months; the bearings are predominantly slide bearings. Iron stamp mills can be purchased from local machine manufacturers, and are usually powered by diesel engines and a system of belts or chains. The catcher-equipped axle rests on rollers or ball bearings.

To avoid flotation caused by dissolved lubricants, the Colombian miner grinds pieces of sisal leaves (cabuya, fique, lat.: Fourcraea macrophylla Baker) in with the feed material (see Technique 15.2).

SUITABILITY FOR SMALL-SCALE MINING:

When stamp mills can be manufactured at low cost, and a hydromechanical, slow-moving direct drive system is available, they are advantageous compared to other, turbo-driven crushers (jaw crusher, roll crusher). Stamp mills are especially suitable for the grinding of tenacious gold ores.

Wooden stamp mill with three stamps and open stamp die, easily visible are the Inset iron stamp shoes, and above them the water wheel axle with catchers for driving the stamps. In the foreground, a blanket sluice with blanket-cover removed; La Llanada' Narino, Colombia

Iron stamp mill with drive-belt gear transmission from a diesel engine. At stamp mill discharge side, the perforated rubber strips serving as screens. In foreground, blanket sluice for gold sorting. La Llanada, Narino, Colombia.


Fig.: Functional diagram of a stamp mill. Source: Wagenbreth.

Wooden stamp mill with three stamps and open stamp die; easily visible are the insert iron stamp shoes, and above them the water-wheel axle with catchers for driving the stamps. In the foreground, a blanket sluice with blanket-cover removed; La Llanada, Narino, Colombia.


Fig.: Water-wheel-driven dry stamp mill. Source: Schennen.

Iron stamp mill with drive-belt gear transmission from a diesel engine. At stamp mill discharge side, the perforated rubber strips serving as screens. In foregound, blanket sluice for gold sorting. la Llanada, Narino, Colombia.


Fig.: Discharge installations in wet stamp mill. Source: Treptow.

Manual stamping mortar (porron) for crushing of rich gold ores in Guaysimi, Ecuador.
Left: discharge over the wall, middle: discharge throught a slit, right: discharge throught piston (stamp) displacement.


Fig.: Californian stamp mill with trimmed set of screens. Source: Treptow.


Fig.: Wet stamp mill. Source: Agricola.


Fig.: Wet stamp mill. Source: Schennen.


Fig.: Hammer mills. Source: Eckholdt.

a=AXLE, b=CATCHERS, c=STAMP LEVER JOINT, d=STAMP LEVEL JOINT HOLDER, e=STAMP LEVER, f=STAMP, g=ANVIL, h=OVERHEAD STABILIZER


Fig.: Tail hammer. Source: Cangrinus.

12.5 Chilean mill edge mill, roller mill

Ore Mining (Gold Ore, Sand and Gravel (colored clays))
Beneficiation Crushing

germ.:

Kollergang, Rollquetsche

span.:

trapiche, molino de muelas, molino chileno, milling track: solera, wheel casing: Llanta

Manufacturer:

Millan, Volcan/both in La Paz, Bolivia, Talleres J.G.

TECHNICAL DATA:

Dimensions:

approx. 2 × 2 × 2 m HWD + drive

Weight:

> 1000 kg

Extent of Mechanization:

fully mechanized

Power required:

5 - 7 kW + 15 kW starting motor

Form of Driving Energy:

electric

Alternative forms:

hydromechanic, animal-powered whim

Mode of Operation:

continuous

Throughput/Capacity:

approx. 1000 kg/in

Operating Materials:


Type:

water

ECONOMIC DATA

Investnment Costs:

approx. 5000 to 6000 DM (locally produced in Bolivia)

Operating Costs:

depends on type of drive system

CONDITIONS OF APPLICATION:

Operating Expenditures:

low |————|————| high

Maintenance Expenditures:

low |————|————| high

Personnel Requirements:

low

Gain Size:

up to 20 mm

Special Feed Requirements:

even hard abrasive feed materials can be crushed

Output:

very high degree of crushing; very fine ultimate grain size

Replaces other Equipment:

ball mills, amalgamating mills, stamp mills

Regional Distribution:

Chile, Ecuador, Bolivia; earlier worldwide, today mainly in agriculture for milling of oil producing fruits (oil mill)

Operating Experience:

very good |————|————| bad

Environmental Impact:

low |————|————| very high


high when combined with amalgamation, otherwise low

Suitability for Local Production:

very good |————|————| bad

Under What Conditions:

metal manufacturers, foundry

Lifespan:

very long |————|————| very short

Bibliography, Source: Priester, v. Bernewitz, Gerth, Schennen, Schabel, Diderot,Gaetzschmann, Treptow

ECONOMIC DATA:

Investment Costs:

approx. 5000 to 6000 DM (locally produced in Bolivia)

Operating Costs:

depends on type of drive system

OPERATING PRINCIPLE:

The Chilean (edge) mill is a typical crusher used in gold beneficiation of primary gold-quartz veins. Two steel-rimmed concrete wheels, frequently weighing more than half a ton, roll around a circular milling track and grind the ore underneath them, yielding fine to very fine grain-sized products due to the high degree of crushing forces exerted. The final grain size is determined by the length of time the mineral is crushed or by the velocity of the water flowing through the mill.

AREAS OF APPLICATION:

For fine grinding and pulverizing. For grinding and amalgamation of Au-ore.

REMARKS:

The real advantage of the edge (Chilean) mill in ore beneficiation lies in its ability to simultaneously grind and amalgamate gold ore, whereby fine gold is kneaded into the mercury so that the amalgam is reached by fine gold particles, which would not otherwise be amalgamated without the kneading due to the mercury's high surface tension. At the same time, the surfaces of liberated gold particles are cleanest during milling, not yet becoming corroded again.

The extremely heavy weight of the wheels poses difficulties in overcoming intertia during the start-up phase, possibly requiring a stronger starting motor. The outer axle stump is sometimes supported by a chain in order to minimize the high lifting forces that occur.

In northern Chilean gold mining, when the grinding operation includes a simultaneous amalgamation, the cone-shaped rim of the grinding track is sometimes covered with copper plates to serve as an amalgamation table. This aids in the binding of finely-distributed "floured mercury".

In general, the Hg-losses during amalgamation in Chilean mills are somewhat high. The finely crushed, flushed-out mercury and amalgam require subsequent removal by gravimetric secondary separation, for example in a hydraulic trap.

In gold mining in Ecuador, copper plates for amalgamation directly suceed the Chilean mill in the beneficiation procedure.

SUITABILITY FOR SMALL-SCALE MINING:

Especially for small-scale gold mining, edge (Chilean) milling with simultaneous amalgamation is very suitable, provided that environmental damage is avoided. For other forms of ore mining, this system is suitable only in limited situations, such as for very finely intergrown ores. For all other types of feed material, the occurence of larger proportions of fines poses difficulties.


Fig.: Molino de arrastre, an early form of the edge (Chilean) mill. Source: Ulsar. Left: side view, Right: top view.


Fig.: Diagram of an edge (Chilean) mill. Source: Bernewitz.


Fig.: Early type of Chilean mill as roller mill with animal-powered whim. Source: Schennen. Left: side view, Right: top view.


Fig.: Edge (Chilean mill. Source: Schanabel.


Fig.: Construnction diagrams of an edge (Chilean) mill produced in Bolivia. Source: Priester.

12.6 ''See-saw'' crusher, ''rocker'' crusher

re Mining (Gold Ore, Sand and Gravel (colored clays))
Beneficiation, Crushing

germ.:

Wiegezerkleinerer

span.:

quimbalete, maray

TECHNICAL DATA:

Dimensions:

approx. 1.5 × 1 × 2 m HWD

Weight:

up to >= 2 t

Extent of Mechanization:

not mechanized

Form of Driving Energy:

manual

Alternative forms:

in Peru partly hydromechanic with water wheel

Mode of Operation:

semi-continuous

Throughput/Capacity:

0.7 - 1.5 kg/M × min

ECONOMIC DATA:

Investment Costs:

nominal since usually self-constructed

Operating Cost:

Iabor costs only

CONDITIONS OF APPLICATION:

Operating Expenditures:

low |————|————| high

Maintenance Expenditures:

low |————|————| high

Grain Size:

up to approx. 5 - 10 cm

Output:

degree of crushing very high, depending on duration of milling: normally 1: 5 to 1:20; final grain-size depending on mill design, of up to 100 % < 100 ym, homogeneous grain distribution in ground product

Replaces other Equipment:

mills, Chilean mills, stamp mills

Regional Distribution:

Bolivia, Peru, Chile, Honduras, Philippines

Operating Experience:

very good |————|————| bad


disregarding the work-intensity involved with the technique, very good

Environmental Impact:

low |————|————| very high

Suitability for Local Production:

very good |————|————| bad

Under What Conditions:

see-saw crusher made of hard rock material (granite, gneiss, etc.) or welded together from scrap Iron, possibly filled with stones or concrete, on a steel or stone plate, are primarily locally produced

Lifespan:

very long |————|————| very short


practically no wear

Bibliography, Source: Priester, Latin America Seminar Hannover, Ahlfeld, Hentschel, Rittinger

OPERATING PRINCIPLE:

Very heavy stone or steel see-saw or rocker crushers are rolled, with the help of a lever arm, over the material to be ground, which is placed on a stone or steel surface. This method of crushing is comparable to that of roll crushers. Through a slight rotation at the dead-canter lever-arm position, the wheels can be repositioned on the grinding surface.

AREAS OF APPLICATION:

Grinding of coarse to medium-grained ores as part of the beneficiation process. Many mining operations crush exclusively with see-saw or rocker crushers.

SPECIAL AREAS OF APPLICATION:

Concave circular stampers are used for fine-crushing/recrushing of fine-grained middlings (see photo opposite).

REMARKS:

Even hard abrasive material can be processed; the wear on the see-saw or rocker crusher remains very low, however the great physical effort required for the hand-crushing of this material poses difficulties. In gold mining in North-Peru, these crushers are sometimes driven by water wheels.

A well-formed grinding surface makes the crushing process significantly easier. The geometric center should be above the mass center.

See-saw or rocker crushing can be performed either as a wet or a dry process, whereby wet crushing produces a more homogeneous product with fewer fines and also minimizes the occurrence of airborne silicate dusts.

Wet crushing could possibly be performed in troughs or sluices, with the fine grains being carried out in the water flow.

According to Rittinger, very hard quartz-ores are sometimes burned prior to crushing in order to shatter the crystals. This in turn reduces the required output in the crushing step by approx. 15%.

In northern Chilean gold mines, poured-concrete milling wheels called "marajes", which run in concrete or stone troughs and are moved by the use of branches or two simple wooden levers, are employed for wet crushing and amalgamation.

SUITABILITY FOR SMALL-SCALE MINING:

As a traditional and widely-used crushing apparatus in Latin American small-scale mining, the see-saw or rocker crusher can still be employed today whenever the quantity of feed material is low, such as for secondary grinding of middlings. Despite its being a highly work-intensive technique, the see-saw crusher is the most effective of the non-mechanized crushing processes.

TO PREVIOUS SECTION OF BOOK TO NEXT SECTION OF BOOK